



本节将简要介绍电气工程图的一些基础知识,包括电气工程图的应用范围、电气工程图的分类和电气工程图的特点等。
预习重点
◎ 了解电气工程图的分类及特点。
◎ 了解电气工程图的应用。
电气工程包含的范围很广,如电子、电力、工业控制、建筑电气等,不同的应用领域其工程图的要求大致是相同的,当然也有其特定要求,规模也大小不一。根据应用领域的不同,电气工程大致可分为以下几类:
1.电力工程
(1)发电工程。根据不同电源性质,发电工程主要可分为火电、水电、核电3类。发电工程中的电气工程指的是发电厂电气设备的布置、接线、控制及其他附属项目。
(2)线路工程。用于连接发电厂、变电站和各级电力用户的输电线路,包括内线工程和外线工程。内线工程指室内动力、照明电气线路及其他线路。外线工程指室外电源供电线路,包括架空电力线路、电缆电力线路等。
(3)变电工程。升压变电站将发电站发出的电能进行升压,以减少远距离输电的电能损失;降压变电站将电网中的高电压降为各级用户能使用的低电压。
2.电子工程
电子工程主要是应用于计算机、电话、广播、闭路电视和通信等众多领域的弱电信号线路和设备。
3.建筑电气工程
建筑电气工程主要是应用于工业与民用建筑领域的动力照明、电气设备、防雷接地等,包括各种动力设备、照明灯具、电器及各种电气装置的保护接地、工作接地、防静电接地等。
4.工业控制电气
工业控制电气主要是用于机械、车辆及其他控制领域的电气设备,包括机床电气、电机电气、汽车电气和其他控制电气。
电气工程图有如下特点:
(1)电气工程图的主要表现形式是简图。简图是采用标准的图形符号和带注释的框或者简化外形表示系统或设备中各组成部分之间相互关系的一种图。电气工程中绝大部分采用简图的形式。
(2)电气图描述的主要内容是元件和连接线。一种电气设备主要由电气元件和连接线组成。因此,无论电路图、系统图,还是接线图和平面图都是以电气元件和连接线作为描述的主要内容。也正因为对电气元件和连接线有多种不同的描述方式,从而构成了电气图的多样性。
(3)电气工程图的基本要素是图形、文字和项目代号。一个电气系统或装置通常由许多部件、组件构成,这些部件、组件或者功能模块称为项目。项目一般由简单的符号表示,这些符号就是图形符号。通常每个图形符号都有相应的文字符号。在同一个图上,为了区别相同的设备,需要给设备编号。设备编号和文字符号一起构成项目代号。
(4)电气工程图的两种基本布局方法是功能布局法和位置布局法。功能布局法指在绘图时,图中各元件的位置只考虑元件之间的功能关系,而不考虑元件的实际位置的一种布局方法。电气工程图中的系统图、电路图采用的是这种方法。
位置布局法是指电气工程图中的元件位置对应于元件的实际位置的一种布局方法。电气工程中的接线图、设备布置图采用的就是这种方法。
(5)电气工程图具有多样性。不同的描述方法,如能量流、逻辑流、信息流、功能流等,形成了不同的电气工程图。系统图、电路图、框图、接线图是描述能量流和信息流的电气工程图;逻辑图是描述逻辑流的电气工程图;功能表图、程序框图描述的是功能流。
电气工程图一方面可以根据功能和使用场合分为不同的类别,另一方面各种类别的电气工程图都有某些联系和共同点,不同类别的电气工程图适用于不同的场合,其表达工程含义的侧重点也不尽相同。对于不同专业和在不同场合下,只要是按照同一种用途绘成的电气工程图,不仅在表达方式与方法上必须是统一的,而且在图的分类与属性上也应该一致。
电气工程图用来阐述电气工程的构成和功能,描述电气装置的工作原理,提供安装和维护使用的信息,辅助电气工程研究和指导电气工程实践施工等。电气工程的规模不同,该项工程的电气图的种类和数量也不同。电气工程图的种类跟工程的规模有关,较大规模的电气工程通常要包含更多种类的电气工程图,从不同的侧面表达不同侧重点的工程含义。一般来讲,一项电气工程的电气图通常装订成册,包含以下内容:
1.目录和前言
电气工程图的目录好比书的目录,便于资料系统化和检索图样,方便查阅,由序号、图样名称、编号、张数等构成。
前言中一般包括设计说明、图例、设备材料明细表、工程经费概算等。设计说明的主要目的在于阐述电气工程设计的依据、基本指导思想与原则,图样中未能清楚表明工程特点、安装方法、工艺要求、特设设备的安装、使用说明及有关的注意事项等的补充说明。图例就是图形符号,一般在前言中只列出本图样涉及的一些特殊图例,通常图例都有约定俗成的图形格式,可以通过查询国家标准和电气工程手册获得。设备材料明细表列出该电气工程所需的主要电气设备和材料的名称、型号、规格和数量,可供实验准备、经费预算和购置设备材料时参考。工程经费概算用于大致统计出该套电气工程所需的费用,可以作为工程经费预算和决算的重要依据。
2.电气系统图和框图
系统图是一种简图,由符号或带注释的框绘制而成,用来概略表示系统、分系统、成套装置或设备的基本组成、相互关系及其主要特征,为进一步编制详细的技术文件提供依据,供操作和维修时参考。系统图是绘制较其层次更低的其他各种电气图(主要是指电路图)的主要依据。
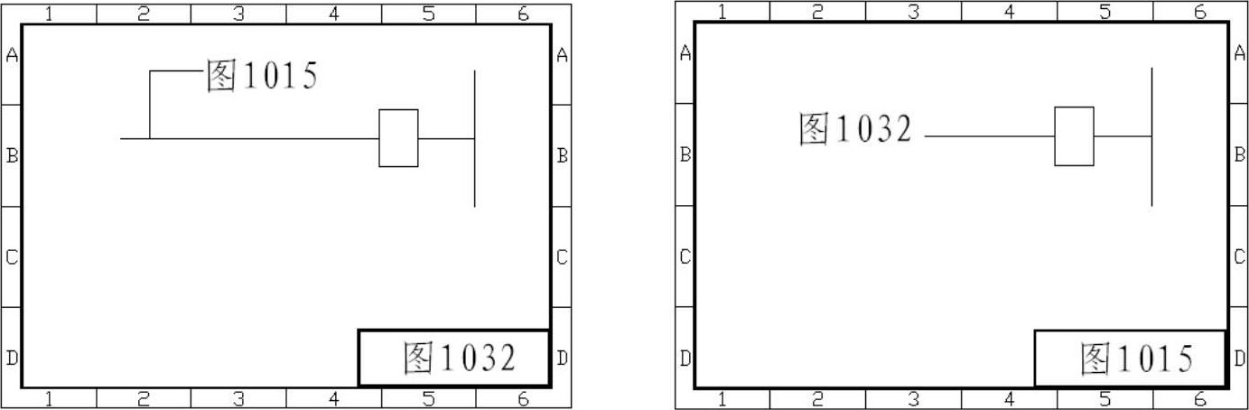
系统图对布图有很高的要求,强调布局清晰,以利于识别过程和信息的流向。基本的流向应该是自左至右或者自上至下,如图1-1所示。只有在某些特殊情况下方可例外,例如用于表达非电工程中的电气控制系统或者电气控制设备的系统图和框图,可以根据非电工程的流程图绘制,但是图中的控制信号应该与工程的流向相互垂直,以利识别,如图1-2所示。
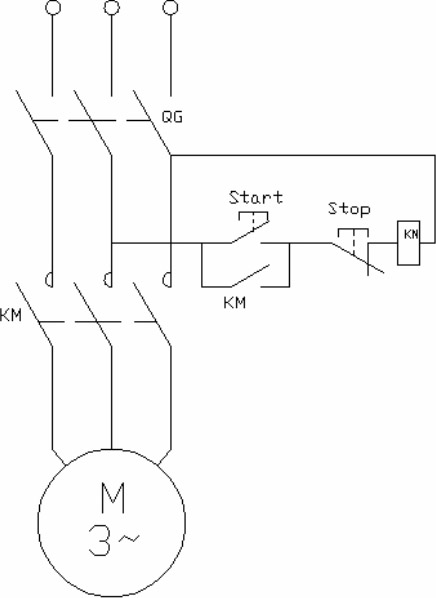
图1-1 电机控制系统图
图1-2 轧钢厂的系统图
3.电路图
电路图是用图形符号绘制,并按工作顺序排列,详细表示电路、设备或成套装置的全部基本组成部分的连接关系,侧重表达电气工程的逻辑关系,而不考虑其实际位置的一种简图。电路图的用途很广,可以用于详细地理解电路、设备或成套装置及其组成部分的作用原理,分析和计算电路特性,为测试和寻找故障提供信息,并作为编制接线图的依据,简单的电路图还可以直接用于接线。
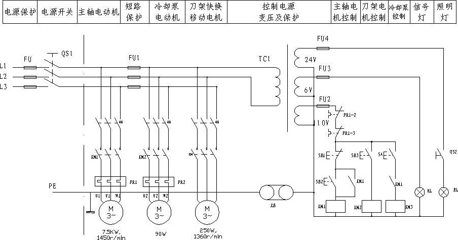
电路图的布图应突出表示功能的组合和性能。每个功能级都应以适当的方式加以区分,突出信息流及各级之间的功能关系,其中使用的图形符号,必须具有完整形式,元件画法简单而且符合国家规范。电路图应根据使用对象的不同需要,增注相应的各种补充信息,特别是应该尽可能地考虑给出维修所需的各种详细资料,例如项目的型号与规格,表明测试点,并给出有关的测试数据(各种检测值)和资料(波形图)等。图1-3为CA6140车床电气设备电路图。
图1-3 CA6140车床电气设备电路图
4.电气接线图
接线图是用符号表示成套装置、设备或装置的内部、外部各种连接关系的一种简图,便于安装接线及维护。
接线图中的每个端子都必须注出元件的端子代号,连接导线的两端子必须在工程中统一编号。接线图布图时,应大体按照各个项目的相对位置进行布置,连接线可以用连续线方式画,也可以用断线方式画,如图1-4所示,不在同一张图的连接线可采用断线画法。
图1-4 不在同一张图的连接线的断线画法
5.电气平面图
电气平面图主要是表示某一电气工程中电气设备、装置和线路的平面布置。它一般是在建筑平面的基础上绘制出来的。常见的电气工程平面图有线路平面图、变电所平面图、照明平面图、弱点系统平面图、防雷与接地平面图等。图1-5为某车间的电气平面图。
图1-5 某车间的电气平面图
6.其他电气工程图
常见的电气工程图中除以上提到的系统图、电路图、接线图、平面图主要的4种外,还有以下4种:
(1)设备布置图。设备布置图主要表示各种电气设备的布置形式、安装方式及相互间的尺寸关系,通常由平面图、立体图、断面图、剖面图等组成。
(2)设备元件和材料表。设备元件和材料表是把某一电气工程所需主要设备、元件、材料和有关的数据列成表格,表示其名称、符号、型号、规格、数量等。
(3)大样图。大样图主要表示电气工程某一部件、构件的结构,用于指导加工与安装,其中一部分大样图为国家标准。
(4)产品使用说明书用电气图。产品使用说明书用电气图是在电气工程中选用的设备和装置,其生产厂家往往随产品使用说明书附上电气图,这些也是电气工程图的组成部分。