



【练习1】设置绘图环境。
1.目的要求
任何一个图形文件都有一个特定的绘图环境,包括图形边界、绘图单位、角度等。设置绘图环境通常有两种方法:设置向导与单独的命令设置方法。通过学习设置绘图环境,可以加深读者对图形总体环境的认识。
2.操作提示
(1)选择菜单栏中的“文件”→“新建”命令,系统打开“选择样板”对话框,单击“打开”按钮,进入绘图界面。
(2)选择菜单栏中的“格式”→“图形界限”命令,设置界限为“(0,0),(297,210)”,在命令行中可以重新设置模型空间界限。
(3)选择菜单栏中的“格式”→“单位”命令,系统打开“图形单位”对话框,设置长度类型为“小数”,精度为“0.00”;角度类型为十进制度数,精度为“0”;用于缩放插入内容的单位为“毫米”,用于指定光源强度的单位为“国际”;角度方向为“顺时针”。
(4)选择菜单栏中的“工具”→“工作空间”→“AutoCAD经典”命令,进入工作空间。
【练习2】熟悉操作界面
1.目的要求
操作界面是用户绘制图形的平台,操作界面的各个部分都有其独特的功能,熟悉操作界面有助于用户方便快速地进行绘图。本例要求了解操作界面各部分功能,掌握改变绘图区颜色和光标大小的方法,能够熟练地打开、移动、关闭工具栏。
2.操作提示
(1)启动AutoCAD 2013,进入操作界面。
(2)调整操作界面大小。
(3)设置绘图区颜色与光标大小。
(4)打开、移动、关闭工具栏。
(5)尝试同时利用命令行、菜单命令和工具栏绘制一条线段。
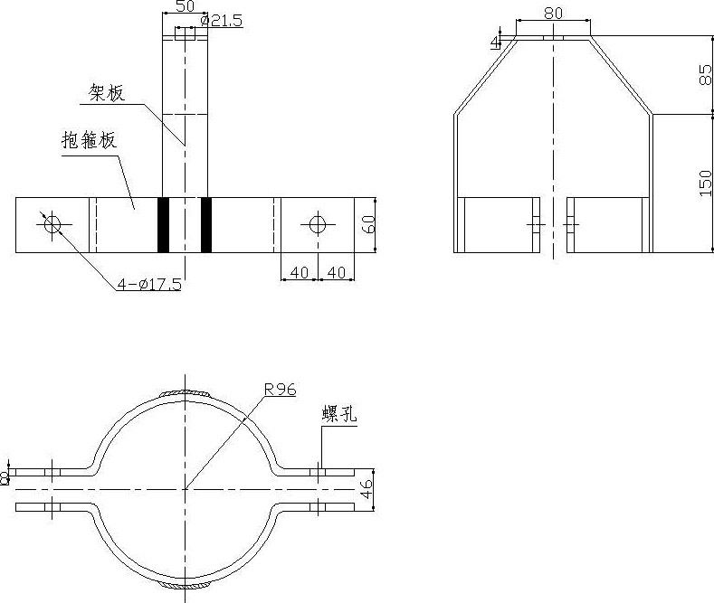
【练习3】观察图形
1.目的要求
本例要求用户熟练地掌握各种图形显示工具的使用方法。
2.操作提示:
如图2-42所示,利用平移工具和缩放工具移动和缩放图形。
图2-42 耐张铁帽三视图