



本节主要介绍国家标准GB/T 18135-2008《电气工程CAD制图规则》中常用的有关规定,同时对其引用的有关标准中的规定加以解释。
1.幅面
电气工程图纸采用的基本幅面有5种:A0、A1、A2、A3和A4,各图幅的相应尺寸如表1-1所示。
表1-1 图幅尺寸的规定 (单位:mm)
2.图框
(1)图框尺寸
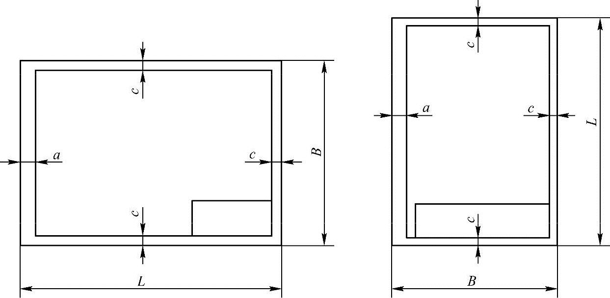
在电气图中,确定图框线的尺寸有两个依据:一个是图纸是否需要装订;另一个是图纸幅面的大小。需要装订时,装订的一侧就要留出装订边。图1-6和图1-7分别为不留装订边的图框和留装订边的图框。右下角矩形区域为标题栏位置。图纸图框尺寸如表1-2所示。
图1-6 不留装订边的图框
图1-7 留装订边的图框
表1-2 图纸图框尺寸 (单位:mm)
(2)图框线宽
根据不同幅面和不同输出设备,图框的内框线宜采用不同的线宽,如表1-3所示。各种图幅的外框线均为0.25mm的实线。
表1-3 图幅内框线宽 (单位:mm)
1.字体
电气工程图图样和简图中的汉字字体应为Windows系统所带的“仿宋_GB2312”。
2.文本尺寸高度
● 常用的文本尺寸宜在下列尺寸中选择:1.5、3.5、5、7、10、14、20,单位为mm。
● 字符的宽高比约为0.7。
● 各行文字间的行距不应小于字高的1.5倍。
图样中采用的各种文本尺寸如表1-4所示。
表1-4 图样中的各种文本尺寸 (单位:mm)
3.表格中的文字和数字
● 数字书写:带小数的数值,按小数点对齐;不带小数点的数值,按个位对齐。
● 文本书写:正文左对齐。
1.线宽
根据用途,图线宽度宜从下列线宽中选用:0.18、0.25、0.35、0.5、0.7、1.0、1.4、2.0,单位为mm。
图形对象的线宽尽量不多于两种,每种线宽间的比值应不小于2。
2.图线间距
平行线(包括画阴影线)之间的最小距离不小于粗线宽度的2倍,建议不小于0.7mm。
3.图线型式
根据不同的结构含义,采用不同的线型,具体要求请参阅表1-5。
表1-5 图线型式
4.线型比例
线型比例 k 与印制比例宜保持适当关系,当印制比例为1∶ n 时,在确定线宽库文件后,线型比例可取 k * n 。
推荐采用的比例如表1-6所示。
表1-6 比例