购买
下载掌阅APP,畅读海量书库
立即打开
畅读海量书库
扫码下载掌阅APP

2.7 多线

多线是指由多条平行线构成的直线,连续绘制的多线是一个图元。多线内的直线线型可以相同,也可以不同,如图2-77所示给出了几种多线形式。多线常用于建筑图的绘制。在绘制多线前应该对多线样式进行定义,然后用定义的样式绘制多线。

图2-77 多线

2.7.1 定义多线样式

使用“多线”命令绘制多线时,首先应对多线的样式进行设置,其中包括多线的数量,以及每条线之间的偏移距离等。

1.执行方式

命令行:MLSTYLE。

2.操作步骤
        命令: MLSTYLE↙

执行该命令后,打开如图2-78所示的“多线样式”对话框。在该对话框中,用户可以对多线样式进行定义、保存和加载等操作。

图2-78 “多线样式”对话框

2.7.2 实例——定义多线样式

利用“多线样式”命令打开“多线样式”对话框,然后设置参数并绘制,过程如图2-79所示。

图2-79 定义多线样式

(1)选择菜单栏中的“格式”→“多线样式”命令,打开“多线样式”对话框。

(2)单击“新建”按钮,打开“创建新的多线样式”对话框,如图2-80所示。

(3)在“新样式名”文本框中输入“THREE”,单击“继续”按钮,打开“新建多线样式:THREE”对话框,如图2-81所示。

(4)在“封口”选项组中可以设置多线起点和端点的特性,包括以直线、外弧还是内弧封口,以及封口线段或圆弧的角度。

(5)在“填充颜色”下拉列表框中可以选择多线填充的颜色。

(6)在“图元”选项组中可以设置组成多线元素的特性。单击“添加”按钮,可以为多线添加元素;反之,单击“删除”按钮,可以为多线删除元素。在“偏移”文本框中可以设置选中元素的位置偏移值。在“颜色”下拉列表框中可以为选中的元素选择颜色。单击“线型”按钮,可以为选中元素设置线型。

图2-80 “创建新的多线样式”对话框

图2-81 “新建多线样式:THREE”对话框

(7)设置完毕后,单击“确定”按钮,返回“多线样式”对话框,在“样式”列表框中会显示刚才设置的多线样式名,选择该样式,单击“置为当前”按钮,则将此多线样式设置为当前样式,下面的预览框中会显示出当前多线样式。

(8)单击“确定”按钮,完成多线样式设置。

2.7.3 绘制多线

多线应用的一个最主要的场合是建筑墙线的绘制,在后面的学习中会通过相应的实例帮助读者进一步体会。

1.执行方式

命令行:MLINE。

菜单栏:“绘图”→“多线”。

2.操作步骤
3.选项说明

指定起点:执行该选项后(即输入多线的起点),系统会以当前的线型样式、比例和对正方式绘制多线。默认状态下,多线的形式是距离为1的平行线。

对正(J):用来确定绘制多线的基准(上、无、下)。

比例(S):用来确定所绘制的多线相对于定义的多线的比例系数,默认为1.00。

样式(ST):用来确定绘制多线时所使用的多线样式,默认样式为STANDARD。执行该选项后,根据系统提示,输入定义过的多线样式名称,或输入“?”显示已有的多线样式。

2.7.4 编辑多线

利用编辑多线命令,可以创建和修改多线样式。

1.执行方式

命令行:MLEDIT。

菜单栏:“修改”→“对象”→“多线”。

2.操作步骤

执行该命令后,打开“多线编辑工具”对话框,如图2-82所示。利用该对话框可以创建或修改多线的模式。该对话框中分4列显示了示例图形。其中,第1列管理十字交叉形式的多线,第2列管理T形多线,第3列管理拐角接合点和节点,第4列管理多线被剪切或连接的形式。选择某个示例图形,即可调用该项编辑功能。

下面以“十字打开”为例介绍多线编辑方法:把选择的两条多线进行打开交叉。选择该选项后,出现如下提示:

        选择第一条多线:(选择第一条多线)
        选择第二条多线:(选择第二条多线)

选择完毕后,第二条多线被第一条多线横断交叉。系统继续提示如下:

        选择第一条多线或 [放弃(U)]:

可以继续选择多线进行操作(选择“放弃(U)”功能会撤销前次操作)。操作过程和执行结果如图2-83所示。

图2-82 “多线编辑工具”对话框

图2-83 十字打开

2.7.5 实例——墙体

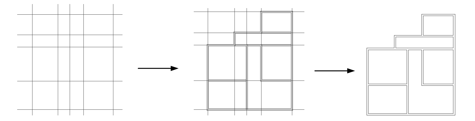
本实例利用“构造线”与“偏移”命令绘制辅助线,再利用“多线”命令绘制墙线,最后编辑多线得到所需图形,绘制流程如图2-84所示。

图2-84 绘制墙体

(1)单击“默认”选项卡“绘图”面板中的“构造线”按钮 ,绘制出一条水平构造线和一条竖直构造线,组成“十”字辅助线。命令行中的提示与操作如下:

        命令: _xline↙
        指定点或 [水平(H)/垂直(V)/角度(A)/二等分(B)/偏移(O)]: h↙
        指定通过点:(适当指定一点)
        指定通过点: ↙
        命令: _xline↙
        指定点或 [水平(H)/垂直(V)/角度(A)/二等分(B)/偏移(O)]: v↙
        指定通过点:(适当指定一点)
        指定通过点: ↙

结果如图2-85所示。

(2)单击“默认”选项卡“绘图”面板中的“构造线”按钮 ,绘制辅助线。命令行中的提示与操作如下:

        命令: XLINE↙
        指定点或 [水平(H)/垂直(V)/角度(A)/二等分(B)/偏移(O)]: O↙
        指定偏移距离或 [通过(T)] <通过>: 4200↙
        选择直线对象:(选择刚绘制的水平构造线)
        指定向哪侧偏移:(在水平构造线的上方单击)
        选择直线对象:(继续选择刚绘制的水平构造线)
        …

重复“构造线”命令,将偏移的水平构造线依次向上偏移5100、1800和3000,绘制的水平构造线如图2-86所示。重复“构造线”命令,将竖直构造线依次向右偏移3900、1800、2100和4500,结果如图2-87所示。

图2-85 “十”字辅助线

图2-86 水平方向的主要辅助线

图2-87 辅助线网格

(3)选择菜单栏中的“格式”→“多线样式”命令,打开“多线样式”对话框,在其中单击“新建”按钮,打开“创建新的多线样式”对话框,在“新样式名”文本框中输入“墙体线”,单击“继续”按钮。

(4)打开“新建多线样式:墙体线”对话框,在其中进行如图2-88所示的设置。

图2-88 设置多线样式

(5)选择菜单栏中的“绘图”→“多线”命令,绘制多线墙体。命令行中的提示与操作如下:

        命令: MLINE↙
        当前设置: 对正=上,比例=20.00,样式=墙体线
        指定起点或 [对正(J)/比例(S)/样式(ST)]: S↙
        输入多线比例 <20.00>: 1↙
        当前设置: 对正=上,比例=1.00,样式=墙体线
        指定起点或 [对正(J)/比例(S)/样式(ST)]: J↙
        输入对正类型 [上(T)/无(Z)/下(B)] <上>: Z↙
        当前设置: 对正=无,比例=1.00,样式=墙体线
        指定起点或 [对正(J)/比例(S)/样式(ST)]:(在绘制的辅助线交点上指定一点)
        指定下一点:(在绘制的辅助线交点上指定下一点)
        指定下一点或 [放弃(U)]:(在绘制的辅助线交点上指定下一点)
        指定下一点或 [闭合(C)/放弃(U)]:(在绘制的辅助线交点上指定下一点)
        …
        指定下一点或 [闭合(C)/放弃(U)]: C↙

重复“多线”命令,根据辅助线网格绘制多线,绘制结果如图2-89所示。

(6)选择菜单栏中的“修改”→“对象”→“多线”命令,打开“多线编辑工具”对话框,如图2-90所示。选择其中的“T形打开”选项,确认后,命令行中的提示与操作如下:

        命令: MLEDIT↙
        选择第一条多线:(选择多线)
        选择第二条多线:(选择多线)
        选择第一条多线或 [放弃(U)]:(选择多线)
        …
        选择第一条多线或 [放弃(U)]: ↙

重复编辑多线命令,继续进行多线编辑,最终结果如图2-91所示。

图2-89 全部多线绘制结果

图2-90 “多线编辑工具”对话框

图2-91 墙体 IKyW//YGeaEq6dYRx9u1QrMn8KocyPMUl1oJlwJYbjFuRBvkEHT+2UUKqEIDdDm0

点击中间区域
呼出菜单
上一章
目录
下一章
×