



第三节 发酵床养猪技术 |
|
发酵床养猪技术是一种新型养殖方式,即在经特殊设计的圈舍里加入有机垫料、微生物菌种,根据生物发酵原理快速降解消化生粪尿等养殖废弃物,无须人工清理、冲洗粪尿,使猪舍达到无臭味、无污染、无蚊蝇的舒适环境,同时猪只拱食了有益菌利用垫料、粪便合成的蛋白质、维生素和有机酸等营养物质,使得免疫力得到了提高。发酵床养猪模式与传统以分散式农户养殖为主的养殖模式相比,提高了饲料利用率和经济效益。
发酵床技术是一种无污染、零排放的有机农业技术,此技术是采集自然系统中存在的具有降解、分解腐殖质功能的有益微生物;通过对这些微生物进行培养、扩繁,形成具有特殊高效功能的微生物母种;然后再将配置好的菌种与锯末、秸秆、稻壳等按一定比例混合;由有益微生物组成的复合菌群以垫料中的部分营养物质以及猪粪尿等排泄物中的有机物为养料进行发酵繁殖,垫料温度达到40摄氏度左右时,发酵床形成;根据有益菌的占位原理可有效预防疾病的发生,部分病原微生物也被杀死和抑制;同时利用猪的翻拱习性,辅助人工翻耙,有利于微生物对猪粪尿进行消化、降解、转化。
猪用发酵床养猪按垫料位置可分为地上式、地下式和半地下式三种。发酵床垫料的位置设置主要是能创造一个通气环境,形成通气发酵。其重点是垫料不能过湿或水浸,否则形成厌氧环境,造成通气发酵停滞。
按菌种来源和制作方式,发酵床可分为土著菌发酵床、林荫落叶垫料发酵床、优势菌种接种发酵床和自然发酵床等。前三种方式均需要接种优势菌种,并喷洒营养液。自然发酵床为简便的猪用发酵床,主要利用动物粪便中的微生物,用土、木屑、牛粪和猪粪等原材料制成垫料,无须额外添加菌种和喷洒营养液,技术简单,推广优势明显。
1.改善猪舍和周围环境
微生物发酵床养猪,利用垫料里的土壤微生物发酵,迅速有效地降解、转化猪的排泄物,不需用水冲刷地面,从而没有任何废弃物、排泄物排出猪场,大大减轻了养猪业对周围环境的污染。
2.减少疾病的发生
发酵床垫料内为微生态平衡环境,平衡稳定的微生态区系可抑制有害微生物的繁殖,有利于保持猪肠道健康,猪发病率特别是呼吸道和消化道疾病和死亡率明显降低。所筛菌株能够利用猪粪,具有很强的生长优势,这样就保证了发酵床内病原菌不至于大量繁殖。同时,发酵床中菌种的代谢产物能够抑制某些病原菌的生长。
3.改善生产性能
发酵床垫料松软,舍内环境良好,适合猪的自然生活习性,最大地满足了猪的行为需要,福利状况明显改观。垫料中的优势菌种可在特定时期内产生某些物质,对金黄色酿脓葡萄球菌和大肠埃希菌的生长产生抑制作用,达到抑制病原菌,促进猪生长的作用。
4.改善猪肉品质
利用发酵床养猪法生产的猪肉,色泽鲜艳,肉味鲜美,富有弹性,肌内脂肪含量适中,猪肉品质得到了很大的提高,生产出真正意义上的无公害有机猪肉。
5.降低养殖成本
发酵床养猪无粪便污染,不需要每天用水冲圈、清粪和扫圈,大大降低了工人的劳动强度和养殖成本,并能取得理想的效果。采用发酵床养殖技术,猪场可节约水、电及用人成本。
影响发酵床发酵的因素包括温度、湿度、含氧量、C/N(碳氮比)和适宜的pH值几个方面。堆肥过程中,温度和湿度是重要的因素,功能菌种一般在10~15摄氏度以上时生长繁殖最快,低于5摄氏度将处于休眠状态。堆体中含氧量保持在8%~18%之间较为适宜。含氧量低于8%会导致厌氧发酵而产生恶臭;含氧量高于18%则引起堆体冷却,有益菌生长受到抑制,导致病原菌大量繁殖。合适的C/N是保证堆肥时能够快速发酵的关键因素,合适的C/N可为微生物的生长提供合适的营养条件。一般认为C/N(25~30)∶1较为适宜。在一般情况下,pH值为3~12都可以进行发酵。但是在pH值为7时发酵效果较好。
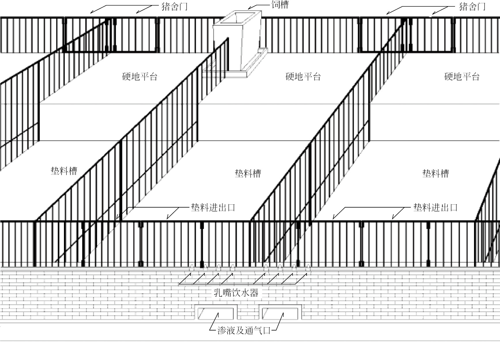
发酵床猪舍的建设要求既符合猪只的生长需要,又要为微生物的发酵提供有益的环境。一般对发酵床猪舍的建设要求是坐北朝南,为了保证舍内采光效果好,应在圈舍内南面屋顶中部建有天窗,南北墙底部设有通风口可使圈舍内形成空气对流,从而使圈舍通风良好、空气新鲜。圈舍内食槽和自动饮水装置可建在南北两侧,这样猪只的来回跑动不仅使垫料得到充分混合,又减少猪的皮下脂肪含量,提高肉品质。在饮水槽下面需设置承水槽,以便将漏的饮水引流到舍外,防止垫料的湿度过大。
(1)每栏面积以40平方米左右为宜,便于垫料的日常养护。
(2)发酵床面积为栏舍面积的70%左右,余下面积应做硬化处理,成为硬地平台,供生猪取食或盛夏高温的休息场所。
(3)垫料高度以保育猪40~50厘米、育成猪60~80厘米为宜,一般南方地区可适当垫低,北方地区适当垫高,夏季适当垫低,冬季适当垫高。
(4)育成猪养殖密度较常规养殖方式降低10%左右,便于发酵床能及时充分的分解粪尿排泄物,能保持健康的养殖环境。
(5)垫料进出口的设计要满足进料和清槽(即垫料使用到一定期限时需要从垫料槽中清出)时操作便利。
(6)加湿装置应保证后期垫料养护加菌时能共用。
(7)通风设施完整,南方夏季加温时要考虑加湿帘。冬季应定时开启排风扇,避免猪舍湿度过大。
由于各地区生产条件和气候的差异,生态养猪的猪舍结构也有不同的建筑形式。目前,猪舍建筑形式大体有以下3种。
1.有窗式双坡面屋顶猪舍
屋顶采用三角形屋架,由桁架、水平拉杆、腹杆、斜撑、檩条等组成,各杆件制作采用材料,有木材、钢材及钢木混用三种。屋顶的外围由机制瓦、石棉瓦、采钢板覆盖,南、北立面墙设窗户,通过墙体、窗户、屋顶等围护结构形成封闭式猪舍,具有良好的保温隔热性能,便于人工控制舍内环境条件。这是国内广泛采用的最基本猪舍形式。
2.半钟楼式猪舍
这是在双坡面屋顶上增设单侧天窗的屋顶形式,加强通风和采光,但不利于保温,这种屋顶多在大跨度猪舍采用,其屋架结构较复杂,造价较高,适用于气候炎热地区,北方也有部分猪场采用这种建筑形式。
3.开放式半圆拱屋顶式猪舍
这种猪舍北面有墙,为单坡面屋顶,南面无墙,为开放式半圆拱桁架日光温室结构,外围覆盖无滴透光塑料膜。猪舍结构简单,造价低,采光充足,通风好,但是保温隔热性差,猪舍环境温度随外界气温变化而变化。为调节猪舍内的温度,冬季白天透光增温,夜间在塑料膜外加盖保温被增强保温;夏季在温室透光膜外加遮阳网,减少日光照射的热辐射,使猪舍凉爽降温。
发酵床类型有多种,依照发酵床所用菌种的来源,可分为土著菌发酵床和优势菌发酵床等;依照发酵床的垫料所处位置不同,可分为地上槽模式、地下槽模式和半地下槽模式。
1.地上槽模式
地上槽模式(图2-44~图2-46)就是将垫料槽建在地面上,垫料槽底部与猪舍外地面持平或略高,硬地平台及操作通道须垫高50~100厘米,保育猪50厘米左右,育成猪100厘米左右,利用硬地平台的一侧及猪舍外墙构成一个与猪舍等长的长槽,并视养殖需要中间由铁栅栏分隔成若干圈栏,以防止串栏。
图2-44 地上槽模式(一)
图2-45 地上槽模式(二)
图2-46 地上槽模式(三)
优点:保持猪舍干燥,特别是能防止高地下水位地区雨季返潮。
缺点:造价稍高。
适应地区:南方大部分地区,江、河、湖、海等地下水位较高的地区,有漏粪设施的猪场改造。
2.地下槽模式
地下槽模式就是将垫料槽构建在地表面以下,槽深40~80厘米,保育猪40厘米左右,育成猪80厘米左右。新猪场建设时可仿地上槽模式,一次性开挖一地下长槽,再由铁栅栏分隔成若干单元;原猪舍改造时,适宜在原圈栏开挖坑槽(图2-47和图2-48)。
图2-47 单列式地下槽模式
图2-48 双列式地下槽模式
优点:冬季发酵床保温性能好,造价较地上槽低。
缺点:透气性稍差,无法留通气孔,发酵床日常养护用工多。
适应地区:北方干燥或地下水位较低的地区。
3.半地下槽模式
也称半地上槽模式(图2-49和图2-50),就是将垫料槽一半建在地下,一半建在地上,硬地平台及操作通道取用开挖的地下部分的土回填,槽深50~90厘米,保育猪40~50厘米,育成猪80~90厘米,长槽的建设与分隔模式同地上槽。
图2-49 单列式半地下槽模式
图2-50 双列式半地下槽模式
优点:造价较上两种模式都低,发酵床养护便利。
缺点:透气性较地上槽差,不适应高地下水位的地区。
适应地区:北方大部分地区,南方坡地或高台地区。
在推广发酵床养猪技术的过程中,要充分结合当地的气候环境,设计符合当地发展需要的猪舍。发酵床养猪的优点很多,很多用户都想使用,发酵床养猪的猪舍有一定的要求,下面就谈谈关于老猪圈的建设改造应该注意的一些问题。
我国农村的老猪舍都是用水泥地坪,墙体不高于2米,这样对做标准的发酵床有一定的影响,往下挖的话地基很浅,水泥地坪也要砸,很费劲,也做不成;重新建设猪舍,还是一笔投资。建议根据实际情况改建,使用发酵床养猪。
(1)不能漏雨,发酵床没法排水,所以整个猪舍的屋顶不能漏雨。
(2)把走廊中间的水泥墙换成栅栏。这样可使墙体开窗之后形成空气对流。
(3)老猪圈基本上窗户很少,把猪圈对应墙体50厘米以上开小窗户。每个猪舍都开,在开窗的时候方便冬季遮盖保暖。这样能形成猪舍的空气对流。
(4)可以把拌好菌液的垫料铺到猪舍,厚度30~40厘米即可,可每养一批猪整体换掉。
(5)使用秸秆等普通的垫料,不必要使用锯末。每批猪出栏的时候一起清理出去,达到猪和粪一起出栏。清理出去的垫料也是很好的微生物肥料,可以进行销售。
(6)如果猪舍的顶可以加高,就加高到3米左右,留下发酵床厚度为80厘米左右。墙体到猪平面有2.2米就足够了。这样和正常的地上式发酵床一样,可以使用很多年。
猪舍内的平面布置,主要是指猪栏发酵床、饲槽、饮水系统、走道及其他设施在舍内与猪舍长轴平行的排列方式。微生态发酵床猪舍内的布排分单列式、双列式和三列式。
发酵床猪舍的通风换气方式,冬季采用自然通风排出舍内有害气体和水汽时,宜采用无动力屋顶通风器。对于跨度小于12米的猪舍,每隔6~9米安装一个排风口直径为0.5米的无动力屋顶通风器即可满足需要。
发酵床养猪,除辐射热和猪产热、散发热量外,发酵床也会产生和散发出大量热量。因此,发酵床猪舍会比普通猪舍的积热多,温度高。夏季气温高,猪舍的热量排不出去时会形成猪的热应激,因此必须加强通风排热。
发酵床猪舍的采暖,在发酵床猪舍内,由于垫料和猪排泄物的发酵产生大量的热量,再加上猪本身的散热,可以使舍内保持一定的温度,冬季一般大猪舍可满足温度要求。但是哺乳仔猪和保育猪对温度有较高的要求,这两种猪舍仍然需要加热采暖。
发酵床主要由有机垫料组成,垫料主要成分是稻壳、锯末、树皮木屑碎片、豆腐渣、酒糟、粉碎秸秆、干生牛粪等,见表2-5,占近90%,锯末占大部分,其他的占少部分。其他10%是土,0.3%是粗盐。猪舍填垫总厚度40~90厘米。土的用量为总材料重量的10%左右,要求是没有用过化肥、农药的干净泥土;盐用量为总材料的0.3%;1立方米的垫料用菌液2千克垫40~60厘米,基本上能垫2平方米的用量。
垫料原料按照不同分类方式,可以划分成不同的类型。如按使用量划分,可以分为主料和辅料。
主料,顾名思义就是制作垫料的主要原料,通常这类原料占到物料比例的60%以上,由一种或几种原料组成,常用的主料有木屑、草灰、秸秆粉、花生壳、蘑菇渣。
辅料,主要是用来调节物料水分、pH值、通透性的一些原料,由一种或几种原料组成,通常这类原料占整个物料的比例不超过40%。常用的辅料有稻壳粉、麦麸、饼粕、玉米面。
如按原料性质划分,可以分为碳素原料、氮素原料和调理剂类原料。
碳素原料,是指那些有机碳含量高的原料,这类原料多用作垫料的主料,如木屑、谷壳、秸秆粉、草灰、蘑菇渣、糠醛渣等。
氮素原料,通常是指那些碳元素和氯元素比值在30以下的原料,并多作为垫料的辅料,如猪场的新鲜猪粪、南方糖厂的甘蔗滤泥、啤酒厂的滤泥等,这类原料通常用来调节C/N。
调理剂类原料,主要指用来调节pH值的原料,如生石灰、石膏以及稀酸等;有时也将调节C/P的原料如过磷酸钙、磷矿粉等归为调理剂;此外还包括一些能量调理剂,如红糖或糖蜜等,这类有机物加入后可提高垫料混合物的能量,使有益微生物在较短的时间内激增到一个庞大的种群数量,所以又俗称“起爆剂”。
垫料制作应该根据当地的资源状况首先确定主料,然后根据主料的性质选取辅料。无论何种原料,其选用的一般原则为原料来源广泛、供应稳定;主料必须为高碳原料;主料水分不宜过高,应便于临时储存;不得选用已经腐烂霉变的原料;成本或价格低。
表2-5 20平方米的猪舍配料(仅供参考)
配方设计的原则是,以惰性原料为主,有适量的营养在内。各种原料的惰性大小排序为锯木屑>花生壳>稻糠>稻草粉>其他秸秆粗粉,惰性越大的原料,越是要加点营养在内(如米糠或麦麸、玉米粉),不然,全部用惰性原料如锯木屑,则发酵不起来,没有营养在内,无法发酵起来,无法发酵产热,从稻糠开始的其他原料,也至少要加米糠或麦麸等至少50千克。
通过分析可说明以下几点。
(1)水分的控制要根据垫料的干湿决定加水的多少,要先把菌液加到水中稀释,然后再往垫料里混合,这样能够使菌液垫料混合均匀,垫料混合之后水分达不到50%左右,还可以再加清水。
(2)垫料混合之后要堆积3~5天发酵,之后可以铺开,没有场地的朋友可以直接垫进去,表面要铺垫5厘米厚的锯末,3~5天后就可以上猪。
(3)由于本垫料操作简单,材料容易选购,但是垫料里面的有机物存在过少,刚开始猪床内部温度不高,这样随着猪粪便的增多,有机物的增多,猪床里面的温度就会上升。
(4)本猪床是根据60厘米的厚度配比,如果增加厚度,其他的量要随之增加。
不论采用何种方法,只要能达到充分搅拌,让它充分发酵就可以。
(1)确定垫料厚度。育肥猪舍垫料层高度夏天为40~60厘米,冬季为60~80厘米。
保育猪舍垫料层高度为60厘米,夏天为40厘米。
(2)计算材料用量。根据不同季节、猪舍面积大小,以及与所需的垫料厚度计算出所需要的谷壳、锯末、米糠以及益生菌液的使用量。
(3)物料堆积发酵。将未发酵的谷壳、锯末各取10%备用。
第一步,首先按每平方米2千克米糠或麸皮加入1千克益生菌(液体)均匀搅拌,水分掌握在30%左右(手握成团,一触即散为宜)。
第二步,将搅拌好的原料打堆,四周用塑料布盖严厌氧发酵。室温尽量保持20~25摄氏度,夏天2~3天,冬季5~7天,发酵好的原料发出酸甜的酒曲香味则发酵成功。
第三步,将发酵好的米糠或麸皮和其余的谷壳和锯末充分混合搅拌均匀,在搅拌过程中,使垫料水分保持在50%~60%(其中水分多少是关键,一般50%~60%比较合适,现场实践是用手抓垫料来判断,即物料用手捏紧后松开,感觉蓬松且迎风有水汽说明水分掌握较为适宜),再均匀铺在圈舍内,最上面用干锯末覆盖5厘米厚,3天即可使用。
第四步,发酵好的垫料摊开铺平,再用预留的谷壳、锯末各10%混合后,覆盖上面整平,厚度约10厘米,然后等待24小时后方可进猪。如猪在圈中跑动时,表层垫料太干,灰尘出现。说明垫料干燥,水分不够,应根据情况喷洒些水分,便于猪正常生长。
养殖垫料能否正常发酵,直接影响到发酵床的效果。因此,养殖垫料的管理有着特别重要的意义。由于各个养殖场所的实际情况有所差别,所以在进行相应垫料管理时,要有针对性。
1.垫料通透性管理
长期保持垫料适当的通透性,即垫料中的含氧量始终维持在正常水平,是发酵床保持较高粪尿分解能力的关键因素之一,同时也是抑制病源微生物繁殖、减少疾病发生的重要手段。通常比较简便的方式就是将垫料经常翻动,翻动深度保育猪为15~20厘米、育成猪为25~35厘米,通常可以结合疏粪或补水将垫料翻匀,另外每隔一段时间(50~60天)要彻底将垫料翻动1次,并且要将垫料层上下混合均匀。厌氧发酵和好氧发酵都可以分解粪尿,但好氧发酵的分解效率是厌氧发酵的10多倍。发酵床以好氧发酵为主,不堆积、不板结、不雨淋、不水浸是日常管理的重点。天天疏粪,每周翻耙,每月深翻,让垫料保持疏松,能促进有氧发酵。如猪集中一处排粪尿,会造成局部过湿而妨碍发酵,需把过湿的垫料挪走,然后撒上新鲜垫料。垫料表层翻混深度,小猪为15~20厘米,大猪为25~35厘米。垫料较泥土轻而疏松,使用小型电动翻混机可比人工翻混提高工效20倍。
2.做好通风换气
通风换气能调节发酵舍温度、湿度,净化空气,有助于维持正常发酵。发酵床表层温度高于40摄氏度为发酵床养猪安全的必要条件。发酵床面下30厘米为主要工作区域,正常工作的发酵床温度在40~50摄氏度(不同菌剂有差异)。当猪舍换气不畅,湿度过高会导致垫料表层部分湿化,使发酵停滞或引起异常发酵,对猪的健康不利。当发酵温度低于15摄氏度或高于70摄氏度,微生物将进入休眠状态或大量死亡,发酵变缓慢甚至停止。饲养中途发酵温度过高,会过度消耗有机质,影响发酵维持,当发酵床温度超过55摄氏度时,应采用通风或翻堆方式降温。跨度小于12米的发酵床猪舍,每隔6~9米安装一个直径500米的无动力屋顶通风器即可满足冬季通风换气的要求。
3.水分调节
垫料合适的水分含量通常为38%~45%,因季节或空气湿度的不同而略有差异,常规补水方式可以采用加湿喷雾补水,也可结合补菌时补水。
在养殖密度和空气湿度相当的情况下,垫料的水分基本能够保持在45%左右的平衡状态。管理人员应定期查看垫料的水分状况,如果出现水分过多的状况,应检查是否有渗漏的情况,并增加对垫料的翻动次数,保持氧气供应;如果水分过少,应及时补充,保障水分供应。
4.疏粪管理
通常保育猪可2~3天进行1次疏粪管理,中大猪应每1~2天进行1次疏粪管理。夏季每天都要进行粪便的掩埋,把新鲜的粪便掩埋到20厘米以下,避免生蝇蛆。管理人员要定期对猪粪尿进行疏理,以保证粪尿的均匀分解和养殖场所的干净卫生。
5.补菌
定期补充益生菌液是维护发酵床正常微生态平衡,保持其粪尿持续分解能力的重要手段。补充益生菌最好做到每周1次,按1∶(50~100)倍稀释喷洒,一边翻猪床20厘米一边喷洒。补菌可结合水分调节和疏粪管理进行。在第1次垫料混合时,管理人员可按照相应的比例加入相应量的发酵菌,并将其均匀地融合在垫料中。
6.垫料补充与更新
在猪出栏后,管理人员应对发酵床上的垫料进行处理,以使其能够在以后的应用中发挥更大的作用。管理人员可以将垫料从底部翻动一遍,并适当补充相应的垫料和发酵菌,再对整个垫料进行重新发酵。
垫料的使用时间通常为3年,较长的可5~7年不用清理。每批猪出栏时,菌床要缺少10厘米左右,把缺少的部分补齐即可。当发酵能力明显下降,氨味、臭味渐浓,用手指轻轻揉搓垫料即变成粉末时需更换新垫料。垫料铜、锌、锰等重金属含量会随使用期增长而增多,对发酵床微生物活动有不利影响。
垫料是否需要更新,可按以下方法进行判断。
(1)高温段上移。通常发酵床垫料的最高温度段应该位于床体的中部偏下段,保育猪发酵床为向下20~30厘米处、育成猪发酵床为向下40~60厘米处,如果日常按操作规程养护,高温段还是向发酵床表面位移,就说明需更新发酵床垫料了。可以在加大有机物含量小的垫料加以混合,比如锯末。
(2)发酵床持水能力减弱。垫料从上往下水分含量逐步增加。当垫料达到使用寿命,供碳能力减弱,粪尿分解速度减慢,水分不能通过发酵产生的高热挥发,会向下渗透,并且速度逐渐加快,该批猪出栏后应及时更新垫料。
(3)猪舍出现臭味,并逐渐加重。垫料在应用的过程中会逐渐地被消耗掉。这就需要管理人员针对实际情况对垫料进行及时的补充和更新,以保证发酵床的高效运用。管理人员可以将深层温度较高的垫料移动到表层上来,也可以适时增加锯末等有机物少的原料或者增加一些混合垫料。
1.锯末用量
面积20平方米、垫料厚度不低于50厘米的标准圈,锯末总用量为6~10立方米。太薄导致不发酵,太厚则可能导致内部升温太高太快。益生菌液可一次性均匀撒入全部垫料中,也可分3~4层局部性集中撒入。尽量用干燥锯末,新鲜锯末最好晾晒干后再撒入。
2.菌剂用量
20平方米猪圈(猪15头左右)用E米益生菌24千克。猪圈面积不能小于10平方米,养猪密度不能过高,否则会因粪尿积累超负荷而停止发酵。
3.节奏控制
猪圈发酵节奏与温度可人为控制,要特别快速升温与发酵,可采取如下一种或几种综合措施:增加益生菌液用量、预先加红糖水活化发酵菌剂、多添加新鲜米糠或尿素水等营养物、增加锯末层厚度、增加翻倒次数并打孔通气、适当调高锯末混合物含水量(但切忌水分不能超过70%,否则会因腐败菌发酵分解而产生臭味,与除臭目的背道而驰)等。调低温度可采用相反措施。内部温度一般不要超过50摄氏度,核心发酵层不超过60摄氏度,表面温度25~30摄氏度以下。
4.替代垫料
尽量用锯末,锯末不易得到可部分用稻壳、秸秆等替代,表面二三十厘米仍用锯末。应注意稻壳要破碎,秸秆应切短(0.5米以下)或粉碎,但不宜太细。
5.湿度面积
发酵床应控制好湿度,垫料一般干撒即可,如垫料太干燥且易引起扬尘,影响猪的呼吸,则只在表层喷点水即可。拉尿后垫料的最大湿度也不能超过65%。注意雨水或地下水均不能渗入床内。标准猪圈面积应在20平方米以上,禁止10平方米以下做猪圈发酵床。
6.发酵状态
正常运行后的发酵床下层物料颜色逐渐变深变黑,无臭味而有淡淡酒香味,温度基本稳定,有时能见到白色菌丝。此时,如需用肥或作粗饲料,可部分清运出舍,不用也可长年不清。