



经纬仪的种类很多,但基本结构大致相同。目前,我国把经纬仪按精度不同分为DJ07、DJ1、DJ2和DJ6等几种类型。D、J分别是“大地测量”和“经纬仪”汉语拼音的第一个字母,数字07、1、2、6等表示该类仪器的精度等级,以秒为单位,如DJ6则表示一测回方向观测中误差不超过±6″的经纬仪。
DJ6型光学经纬仪是各种工程测量中最常用的一种测角仪器,适用于各种比例尺的地形图测绘和工程施工放样。由于生产厂家不同,仪器结构和部件也不尽相同。按照读数装置不同可分为两类:一类是测微尺读数装置;另一类是单平板玻璃测微器读数装置。
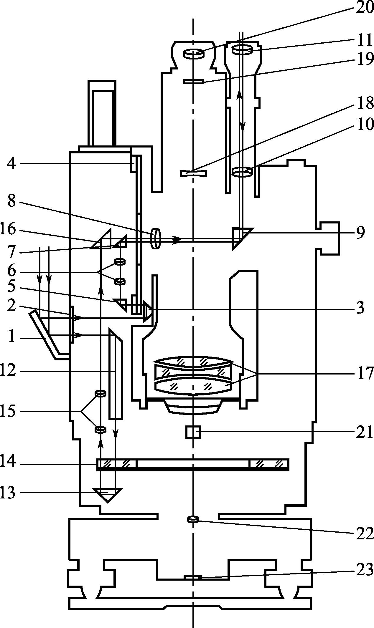
国产DJ6型光学经纬仪外形及各部件名称如图3-3所示。它由照准部、水平度盘和基座三个主要部分组成。图3-4所示为DJ6型光学经纬仪主要部分的结构图。
图3-3 DJ6型光学经纬仪
1—望远镜制动手柄;2—望远镜微动螺旋
图3-4 DJ6型光学经纬
(1)照准部 照准部是光学经纬仪的重要组成部分,主要指水平度盘之上,能绕其旋转轴旋转的全部部件的总称,它主要由望远镜、照准部管水准器、竖直度盘(或简称竖盘)、竖盘指标管水准器、读数显微镜、横轴、竖轴、U形支架和光学对中器等各部分组成。照准部可绕竖轴在水平面内转动,由水平制动螺旋和水平微动螺旋控制。
①望远镜 它固连在仪器横轴(又称水平轴)上,可绕横轴俯仰转动而照准高低不同的目标,并由望远镜制动螺旋和微动螺旋控制。
②照准部管水准器 用来精确整平仪器。
③竖直度盘 用光学玻璃制成,可随望远镜一起转动,用来测量竖直角。
④光学对中器 用来进行仪器对中,使仪器中心位于过测站点的铅垂线上。
⑤竖盘指标管水准器 在竖直角测量中,利用竖盘指标管水准微动螺旋使气泡居中,保证竖盘读数指标线处于正确位置。
⑥读数显微镜 用来精确读取水平度盘和竖直度盘的读数。
⑦仪器横轴 安装在U形支架上,望远镜可绕仪器横轴俯仰转动。
⑧仪器竖轴 又称为照准部的旋转轴,竖轴插入基座内的竖轴轴套中旋转。
【例3-3】 当经纬仪的望远镜上下转动时,竖直度盘会( )。 (与望远镜一起转动)
(2)水平度盘 水平度盘是由光学玻璃制成的带有刻画和注记的圆环形的光学玻璃片,安装在仪器竖轴上,度盘边缘按顺时针方向在0°~360°间每隔1°刻画并注记度数。在一测回观测过程中,水平度盘和照准部是分离的,不随照准部一起转动,在观测开始前,通常将其始方向(零方向)的水平度盘读数配置在0°左右,当转动照准部照准不同方向的目标时,移动的读数指标线便可在固定不动的度盘上读得不同的度盘读数即方向值。如需要变换度盘位置时,可利用仪器上的水平度盘变换器,把度盘变换到需要的读数上。使用时,将水平度盘变换器手轮推压进去,转动手轮,此时水平度盘跟着转动。待转到所需角度时,将手松开,手轮弹出,水平度盘位置即安置好。
(3)基座 基座即仪器的底座。照准部连同水平度盘一起插入基座轴座,用中心锁紧螺旋固紧。在基座下面,用中心连接螺旋把整个经纬仪和三脚架相连接,基座上装有三个脚螺旋,用于整平仪器。
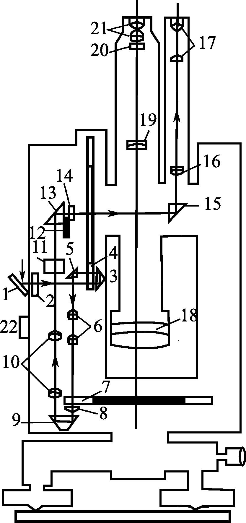
(1)光路系统 如图3-5所示,光线经度盘照明反光镜进入仪器内部后分为两路:一路是水平度盘光路;另一路是竖直度盘光路。
图3-5 DJ6型光学经纬
1—度盘照明反光镜;2—度
①水平度盘光路 进入仪器内部的光线经棱镜12转向90°后,经聚光透镜照射在水平度盘无刻画部分,透过度盘经底棱镜13将光线转向180°后折返向上,第二次照射在度盘上有刻画注记的部分,向上透过度盘,带着度盘上不透光的刻划和注记影像,经光具组15对影像进行第一次放大,再经棱镜16转向90°成像在读数窗场镜的测微尺8上。
②竖直度盘光路 进入仪器内部的光线经竖盘照明棱镜3转向180°后透过度盘,带着竖盘刻画注记影像经棱镜5折转90°向上,通过光具组对影像进行一次放大,再经棱镜7转向90°也成像在读数窗场镜的另一块测微尺8上。
水平和竖直两路光线透过读数窗场镜后,分别带着水平度盘、竖直度盘及两块测微尺的影像,经棱镜9转向90°进入读数显微镜,通过透镜组对影像进行第二次放大,观测时,调节读数显微镜目镜11即可同时清晰地看到水平度盘、竖直度盘及两块测微尺的影像。放大率约为65倍。如图3-6所示。
图3-6 测微尺读数窗
(2)测微装置 测微装置即测微尺,用来量测度盘上不足一个分划间隔的微小角值。
测微尺影像宽度恰好等于度盘上相差1°的两条分划线经光路第一次放大后的宽度,即总宽度为1°,共分60小格,则每格为1'。在测微尺上可直接读到1',估读到0.1格即6″。每10格加一注记,注记数值为0~6,显然,测微尺上数值注记为整10'的数值。
(3)读数方法 读数时,先读出位于测微尺0 ~ 6之间度盘分划线的度数,再读出该分划线所在处测微尺上的分、秒值,两数之和即为读数结果。图3-6中,水平度盘读数为215°07.3',即215°07'18″;竖盘读数为78°48.2',即78°48'12″。
图3-7所示为DJ6-1型光学经纬仪,图3-8为该仪器的光路示意图。
图3-7 DJ6-1型光学经纬仪
1—竖盘指标水准管;2—反
图3-8 DJ6-1型光学
1—度盘照明反光镜;2—度
DJ6-1型光学经纬仪没有水平度盘变换手轮,而是采用复测装置。该装置是用复测扳手代替水平度盘变换手轮来控制水平度盘的转动。复测扳手是一偏心凸轮,扳下复测扳手,度盘与照准部扣合在一起,转动照准部将带动水平度盘一起转动,读数显微镜中的水平度盘读数不变。扳上复测扳手,照准部就不带动水平度盘一起旋转,读数显微镜中的水平度盘读数随之改变,此时可读取不同的度盘读数。
该类仪器的水平度盘每隔30'有一刻划线,每隔1°注记,即度盘最小刻画值为30'。与最小度盘刻画相对应的测微器总宽度为30',共刻有90小格,每5格有一注记。显然,测微器上最小刻画值为20″(不足20″的值可估读)。
图3-9所示为在读数显微镜中看到的度盘及测微器影像。最上面的小窗为测微器读数窗,中间和下面两窗内分别为竖直度盘和水平度盘的影像。读数时,需先转动测微器手轮(简称测微轮),使度盘分划线精确地移至双线指标的正中间,读出度和整30'数值,然后再读出单线指标在测微器读数窗中所指的分、秒值,两读数之和即为读数结果。
图3-9 单平板玻璃测微器的读数方法
如图3-9(a)所示,双线指标所夹水平度盘数值为49°30',单线指标在最上面测微器读数窗中读数为22'20″,故应有读数为49°30'+22'20″=49°52'20″。图3-9(b)中竖盘读数为107°00'+01'40″=107°01'40″。