购买
下载掌阅APP,畅读海量书库
立即打开
畅读海量书库
扫码下载掌阅APP

1.1 建筑分类及耐火等级

1.1.1 民用建筑分类

民用建筑应根据其使用性质、火灾危险性、疏散和扑救难度等进行分类,并应符合表1-1的规定,如图1-1~图1-3所示。

表1-1 建筑分类

注:1.表中未列入的建筑,其类别应根据本表类比确定。

2.除《建筑设计防火规范》(GB 50016—2014)另有规定外,宿舍、公寓等非住宅类居住建筑的防火要求,应符合该规范有关公共建筑的规定。

3.除《建筑设计防火规范》(GB 50016—2014)另有规定外,裙房的防火要求应符合该规范有关高层民用建筑的规定。

图1-1 一类高层民用建筑及其裙房

图1-2 二类高层民用建筑及其裙房

图1-3 单、多层民用建筑

1.1.2 民用建筑耐火等级

(1)民用建筑的耐火等级可分为一、二、三、四级。除另有规定外,不同耐火等级建筑相应构件的燃烧性能和耐火极限不应低于表1-2的规定。

表1-2 不同耐火等级建筑相应构件的燃烧性能和耐火极限

注:1.除另有规定外,以木柱承重且墙体采用不燃材料的建筑,其耐火等级应按四级确定。

2.住宅建筑构件的耐火极限和燃烧性能可按现行国家标准《住宅建筑规范》(GB 50368—2005)的规定执行。

(2)民用建筑的耐火等级应根据其建筑高度、使用功能、重要性和火灾扑救难度等确定,并应符合下列规定:

①地下或半地下建筑(室)和一类高层建筑的耐火等级不应低于一级;

②单、多层重要公共建筑和二类高层建筑的耐火等级不应低于二级。

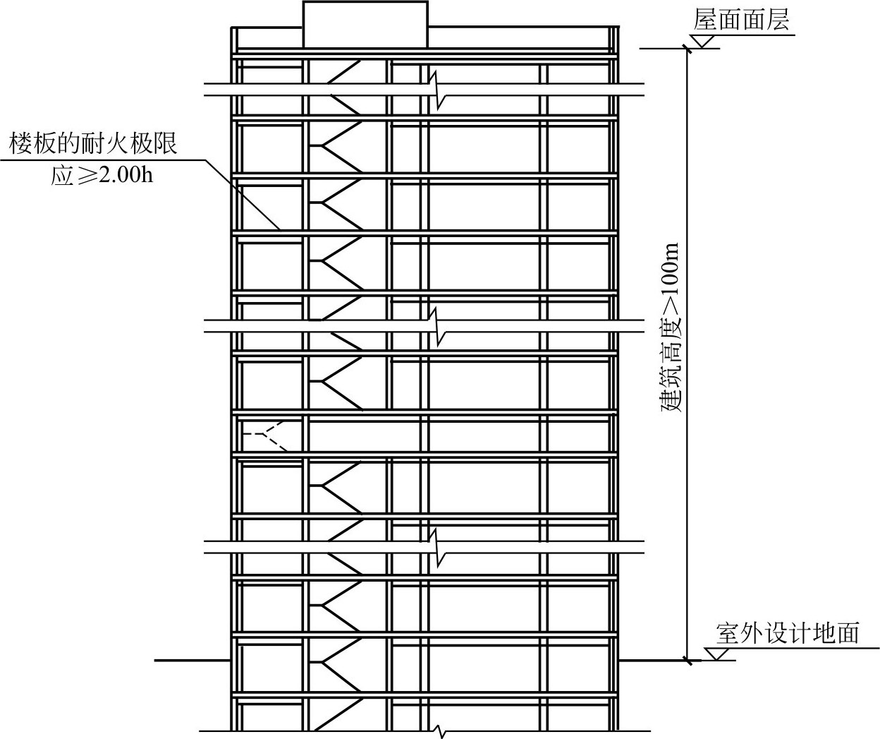
(3)建筑高度大于100m的民用建筑,其楼板的耐火极限不应低于2.00h,如图1-4所示。

图1-4 建筑高度大于100m的民用建筑

一、二级耐火等级建筑的上人平屋顶,其屋面板的耐火极限分别不应低于1.50h和1.00h,如图1-5所示。

图1-5 一、二级耐火等级建筑的上人平屋顶剖面示意图

(4)一、二级耐火等级建筑的屋面板应采用不燃材料 屋面防水层宜采用不燃、难燃材料,当采用可燃防水材料且铺设在可燃、难燃保温材料上时,可燃防水材料或可燃、难燃保温材料应采用不燃材料作防护层。

(5)二级耐火等级建筑内采用难燃性墙体的房间隔墙,其耐火极限不应低于0.75h;当房间的建筑面积不大于100m 2 时,房间隔墙可采用耐火极限不低于0.50h的难燃性墙体或耐火极限不低于0.30h的不燃性墙体,如图1-6所示。

图1-6 二级耐火等级建筑的房间隔墙

二级耐火等级多层住宅建筑内采用预应力钢筋混凝土的楼板,其耐火极限不应低于0.75h,如图1-7所示。

图1-7 二级耐火等级多层住宅建筑的楼板

(6)建筑中的非承重外墙、房间隔墙和屋面板,当确需采用金属夹芯板材时,其芯材应为不燃材料,且耐火极限应符合《建筑设计防火规范》(GB 50016—2014)有关规定。

(7)二级耐火等级建筑内采用不燃材料的吊顶,其耐火极限不限 三级耐火等级的医疗建筑、中小学校的教学建筑、老年人建筑及托儿所、幼儿园的儿童用房和儿童游乐厅等儿童活动场所的吊顶,应采用不燃材料;当采用难燃材料时,其耐火极限不应低于0.25h,如图1-8所示。

图1-8 三级耐火等级建筑的吊顶

二、三级耐火等级建筑内门厅、走道的吊顶应采用不燃材料,如图1-9所示。

图1-9 二、三级耐火等级建筑门厅、走道的吊顶

(8)建筑内预制钢筋混凝土构件的节点外露部位,应采取防火保护措施,且节点的耐火极限不应低于相应构件的耐火极限。 5M9Xyevb+gYxW287Xhl2+e6rhLTT5+8ps3z98HHYABeks8//bqcL7wmHxnGmvRS9

点击中间区域
呼出菜单
上一章
目录
下一章
×