购买
下载掌阅APP,畅读海量书库
立即打开
畅读海量书库
扫码下载掌阅APP

3.1 建筑构造

3.1.1 防火墙

3.1.1.1 防火墙的定义与分类

防火墙是指用具有4.00h(高层建筑为3.00h)以上耐火极限的非燃烧材料砌筑在独立的基础(或框架结构的梁)上,以形成防火分区,控制火灾范围的部件。它可以根据需要而独立设置,也可以把其他隔墙、围护墙按照防火墙的构造要求砌筑而成。

从建筑平面看,防火墙有纵横之分,与屋脊方向垂直的是横向防火墙,与屋脊方向一致的是纵向防火墙。从防火墙的位置分,有内墙防火墙、外墙防火墙和室外独立的防火墙等。内墙的防火墙是把房屋划分成防火分区的内部分隔墙,外墙防火墙是在两幢建筑物间因防火间距不够而设置无门窗(或设防火门、窗)的外墙;室外独立的防火墙是当建筑物间的防火间距不足,又不便于使用外防火墙时,可采用室外独立防火墙,用以遮断两幢建筑之间的火灾蔓延。

3.1.1.2 防火墙构造

①防火墙应直接设置在建筑的基础或框架、梁等承重结构上,框架、梁等承重结构的耐火极限不应低于防火墙的耐火极限,如图3-1所示。

图3-1 防火墙与屋面连接处的构造

防火墙应从楼地面基层隔断至梁、楼板或屋面板的底面基层。当高层厂房(仓库)屋顶承重结构和屋面板的耐火极限低于1.00h,其他建筑屋顶承重结构和屋面板的耐火极限低于0.50h时,防火墙应高出屋面0.5m以上,如图3-2所示。

图3-2 防火墙高度

②在建筑设计中,如果在靠近防火墙的两侧开窗,如图3-3所示。发生火灾时,从一个窗口窜出的火焰,很容易烧坏另一窗户,导致火灾蔓延到相邻防火分区。为此,防火墙两侧开的窗口的最近距离不应小于2m。此外,还应当尽量避免在U形、L形建筑物的转角处设防火墙,否则,防火墙一侧发生火灾,火焰突破窗口后很容易破坏另一侧的门窗,形成火灾蔓延的条件。但是,必须设在转角附近时,两侧门窗口的最近水平距离不应小于4m。

图3-3 防火墙的平面布置

③建筑外墙为难燃性或可燃性墙体时,防火墙应凸出墙的外表面0.4m以上,且防火墙两侧的外墙均应为宽度均不小于2.0m的不燃性墙体,其耐火极限不应低于外墙的耐火极限,如图3-4所示。

图3-4 建筑物的外墙为难燃烧体时的防火墙要求

④当建筑物的外墙为不燃烧体时,防火墙可不凸出墙的外表面。紧靠防火墙两侧的门、窗洞口之间最近边缘的水平距离不应小于2m;但装有固定窗扇或火灾时可自动关闭的乙级防火窗时,该距离可不限,如图3-5所示。

图3-5 建筑物的外墙为不燃烧体时的防火墙的设置

防火墙上不应开设门、窗、洞口,确需开设时,应设置不可开启或火灾时能自动关闭的甲级防火门、窗,如图3-6所示。有些国家则要求防火墙上不得安置任何玻璃窗,并对不同隔墙上镶嵌丝玻璃的面积作了具体的规定,见表3-1。

图3-6 防火墙上门、窗、洞口的设置

表3-1 防火墙及隔墙上开口的允许面积

注:1in=0.0254m。

可燃气体和甲、乙、丙类液体的管道严禁穿过防火墙,如图3-7(a)所示。其他管道不宜穿过防火墙,确需穿过时,应采用防火封堵材料将墙与管道之间的空隙紧密填实,穿过防火墙处的管道保温材料,应采用不燃材料,如图3-7(b)所示。当管道为难燃及可燃材料时,应在防火墙两侧的管道上采取防火措施,如图3-7(c)所示。防火墙内不应设置排气道,如图3-7(d)所示。

图3-7 防火墙上管道的设置

⑤防火墙的构造应能在防火墙任意一侧的屋架、梁、楼板等受到火灾的影响而破坏时,不会导致防火墙倒塌。

⑥根据目前建筑发生的问题和火灾教训,必须将走道两侧的隔墙、面积超过100m 2 的房间隔墙、贵重设备房间隔墙、火灾危险性较大的房间隔墙及医院病房等房间的隔墙,均应砌至梁板的底部,不留缝隙,以防止烟火蔓延,扩大灾害(图3-8)。

图3-8 隔墙防火构造示意图

3.1.2 建筑构件和管道井

(1)剧场等建筑的舞台与观众厅之间的隔墙应采用耐火极限不低于3.00h的防火隔墙。

舞台上部与观众厅闷顶之间的隔墙可采用耐火极限不低于1.50h的防火隔墙,隔墙上的门应采用乙级防火门。

舞台下部的灯光操作室和可燃物储藏室应采用耐火极限不低于2.00h的防火隔墙与其他部位分隔,如图3-9所示。

图3-9 舞台与观众厅之间的隔墙

电影放映室、卷片室应采用耐火极限不低于1.50h的防火隔墙与其他部位分隔,观察孔和放映孔应采取防火分隔措施。

(2)医疗建筑内的手术室或手术部、产房、重症监护室、贵重精密医疗装备用房、储藏间、实验室、胶片室等,附设在建筑内的托儿所、幼儿园的儿童用房和儿童游乐厅等儿童活动场所、老年人活动场所,应采用耐火极限不低于2.00h的防火隔墙和1.00h的楼板与其他场所或部位分隔,墙上必须设置的门、窗,应采用乙级防火门、窗,如图3-10所示。

图3-10 医院建筑以及儿

(3)建筑内的下列部位应采用耐火极限不低于2.00h的防火隔墙与其他部位分隔,墙上的门、窗应采用乙级防火门、窗,确有困难时,可采用防火卷帘,但应符合3.1.5防火门、窗和防火卷帘中相应的规定。

①甲、乙类生产部位和建筑内使用丙类液体的部位。

②厂房内有明火和高温的部位。

③甲、乙、丙类厂房(仓库)内布置有不同火灾危险性类别的房间。

④民用建筑内的附属库房,剧场后台的辅助用房。

⑤除居住建筑中套内的厨房外,宿舍、公寓建筑中的公共厨房和其他建筑内的厨房。

⑥附设在住宅建筑内的机动车库。

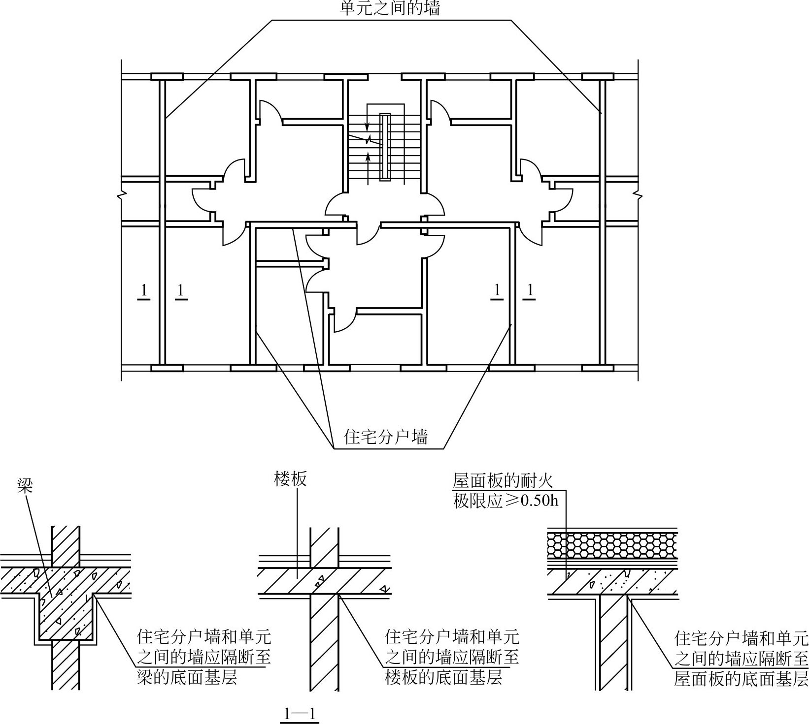
(4)建筑内的防火隔墙应从楼地面基层隔断至梁、楼板或屋面板的底面基层。住宅分户墙和单元之间的墙应隔断至梁、楼板或屋面板的底面基层,屋面板的耐火极限不应低于0.50h,如图3-11所示。

图3-11 单元式住宅示意图

(5)除《建筑设计防火规范》(GB 50016—2014)另有规定外,建筑外墙上、下层开口之间应设置高度不小于1.2m的实体墙或挑出宽度不小于1.0m、长度不小于开口宽度的防火挑檐。当室内设置自动喷水灭火系统时,上、下层开口之间的实体墙高度不应小于0.8m。当上、下层开口之间设置实体墙确有困难时,可设置防火玻璃墙。但高层建筑的防火玻璃墙的耐火完整性不应低于1.00h,多层建筑的防火玻璃墙的耐火完整性不应低于0.50h。外窗的耐火完整性不应低于防火玻璃墙的耐火完整性要求。

住宅建筑外墙上相邻户开口之间的墙体宽度不应小于1.0m;小于1.0m时,应在开口之间设置突出外墙不小于0.6m的隔板。

实体墙、防火挑檐和隔板的耐火极限和燃烧性能,均不应低于相应耐火等级建筑外墙的要求。

(6)建筑幕墙应在每层楼板外沿处采取符合(5)规定的防火措施,幕墙与每层楼板、隔墙处的缝隙应采用防火封堵材料封堵。

(7)附设在建筑内的消防控制室、灭火设备室、消防水泵房和通风空气调节机房、变配电室等,应采用耐火极限不低于2.00h的防火隔墙和1.50h的楼板与其他部位分隔。

设置在丁、戊类厂房内的通风机房,应采用耐火极限不低于1.00h的防火隔墙和0.50h的楼板与其他部位分隔。

通风、空气调节机房和变配电室开向建筑内的门应采用甲级防火门,消防控制室和其他设备房开向建筑内的门应采用乙级防火门。

(8)冷库、低温环境生产场所采用泡沫塑料等可燃材料作墙体内的绝热层时,宜采用不燃绝热材料在每层楼板处做水平防火分隔。防火分隔部位的耐火极限不应低于楼板的耐火极限。冷库阁楼层和墙体的可燃绝热层宜采用不燃性墙体分隔。

冷库、低温环境生产场所采用泡沫塑料作内绝热层时,绝热层的燃烧性能不应低于B 1 级,且绝热层的表面应采用不燃材料作防护层。

冷库的库房与加工车间贴邻建造时,应采用防火墙分隔,当确需开设相互连通的开口时,应采取防火隔间等措施进行分隔,隔间两侧的门应为甲级防火门。当冷库的氨压缩机房与加工车间贴邻时,应采用不开门窗洞口的防火墙分隔。

(9)建筑内的电梯井等竖井应符合下列规定。

①电梯井应独立设置,井内严禁敷设可燃气体和甲、乙、丙类液体管道,不应敷设与电梯无关的电缆、电线等。电梯井的井壁除设置电梯门、安全逃生门和通气孔洞外,不应设置其他开口。

②电缆井、管道井、排烟道、排气道、垃圾道等竖向井道,应分别独立设置。井壁的耐火极限不应低于1.00h,井壁上的检查门应采用丙级防火门。

③建筑内的电缆井、管道井应在每层楼板处采用不低于楼板耐火极限的不燃材料或防火封堵材料封堵。

建筑内的电缆井、管道井与房间、走道等相连通的孔隙应采用防火封堵材料封堵。

④建筑内的垃圾道宜靠外墙设置,垃圾道的排气口应直接开向室外,垃圾斗应采用不燃材料制作,并应能自行关闭。

⑤电梯层门的耐火极限不应低于1.00h,并应符合现行国家标准《电梯层门耐火试验完整性、隔热性和热通量测定法》(GB/T 27903—2011)规定的完整性和隔热性要求。

(10)户外电致发光广告牌不应直接设置在有可燃、难燃材料的墙体上。

户外广告牌的设置不应遮挡建筑的外窗,不应影响外部灭火救援行动。

3.1.3 屋顶、闷顶和建筑缝隙

①在三、四级耐火等级建筑的闷顶内采用可燃材料作绝热层时,屋顶不应采用冷摊瓦。闷顶内的非金属烟囱周围0.5m、金属烟囱0.7m范围内,应采用不燃材料作绝热层,如图3-12所示。

图3-12 三、四级耐火等级建筑的闷顶

②层数超过2层的三级耐火等级建筑内的闷顶,应在每个防火隔断范围内设置老虎窗,且老虎窗的间距不宜大于50m,如图3-13所示。

图3-13 层数超过2层的三级耐火等级建筑内的闷顶

③内有可燃物的闷顶,应在每个防火隔断范围内设置净宽度和净高度均不小于0.7m的闷顶入口,如图3-14所示。对于公共建筑,每个防火隔断范围内的闷顶入口不宜少于2个。闷顶入口宜布置在走廊中靠近楼梯间的部位,如图3-15所示。

图3-14 住宅顶层示意图

图3-15 公共建筑闷顶平面示意图

④变形缝内的填充材料和变形缝的构造基层应采用不燃材料。电线、电缆、可燃气体和甲、乙、丙类液体的管道不宜穿过建筑内的变形缝,确需穿过时,应在穿过处加设不燃材料制作的套管或采取其他防变形措施,并应采用防火封堵材料封堵。

⑤防烟、排烟、供暖、通风和空气调节系统中的管道及建筑内的其他管道,在穿越防火隔墙、楼板和防火墙处的孔隙应采用防火封堵材料封堵。

风管穿过防火隔墙、楼板和防火墙时,穿越处风管上的防火阀、排烟防火阀两侧各2.0m范围内的风管应采用耐火风管或风管外壁应采取防火保护措施,且耐火极限不应低于该防火分隔体的耐火极限。

⑥建筑内受高温或火焰作用易变形的管道,在贯穿楼板部位和穿越防火隔墙的两侧宜采取阻火措施。

⑦建筑屋顶上的开口与邻近建筑或设施之间,应采取防止火灾蔓延的措施。

3.1.4 疏散楼梯间和疏散楼梯

(1)疏散楼梯间应符合下列规定。

①楼梯间应能天然采光和自然通风,并宜靠外墙设置。靠外墙设置时,楼梯间、前室及合用前室外墙上的窗口与两侧门、窗、洞口最近边缘的水平距离不应小于1.0m。

②楼梯间内不应设置烧水间、可燃材料储藏室、垃圾道。

③楼梯间内不应有影响疏散的凸出物或其他障碍物。

④封闭楼梯间、防烟楼梯间及其前室,不应设置卷帘。

⑤楼梯间内不应设置甲、乙、丙类液体管道。

⑥封闭楼梯间、防烟楼梯间及其前室内禁止穿过或设置可燃气体管道。敞开楼梯间内不应设置可燃气体管道,当住宅建筑的敞开楼梯间内确需设置可燃气体管道和可燃气体计量表时,应采用金属管和设置切断气源的阀门。

(2)封闭楼梯间应符合下列规定。

①不能自然通风或自然通风不能满足要求时,应设置机械加压送风系统或采用防烟楼梯间。

②除楼梯间的出入口和外窗以外,楼梯间的墙上不应开设其他门、窗、洞口。

③高层建筑,人员密集的公共建筑,人员密集的多层丙类厂房,甲、乙类厂房,其封闭楼梯间的门应采用乙级防火门,并应向疏散方向开启;其他建筑,可采用双向弹簧门。

④楼梯间的首层可将走道和门厅等包括在楼梯间内形成扩大的封闭楼梯间,但应采用乙级防火门等与其他走道和房间分隔。

(3)防烟楼梯间应符合下列规定。

①应设置防烟设施。

②前室可与消防电梯间前室合用。

③前室的使用面积:公共建筑、高层厂房(仓库),不应小于6.0m 2 ;住宅建筑,不应小于4.5m 2

与消防电梯间前室合用时,合用前室的使用面积:公共建筑、高层厂房(仓库),不应小于10.0m 2 ;住宅建筑,不应小于6.0m 2

④疏散走道通向前室以及前室通向楼梯间的门应采用乙级防火门。

⑤除住宅建筑的楼梯间前室外,防烟楼梯间和前室内的墙上不应开设除疏散门和送风口外的其他门、窗、洞口。

⑥楼梯间的首层可将走道和门厅等包括在楼梯间前室内形成扩大的前室,但应采用乙级防火门等与其他走道和房间分隔。

(4)除通向避难层错位的疏散楼梯外,建筑内的疏散楼梯间在各层的平面位置不应改变,如图3-16所示。

图3-16 楼层平面示意图

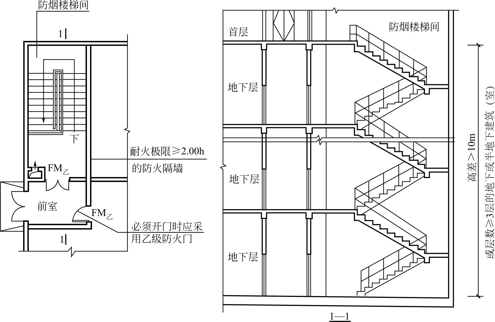
除住宅建筑套内的自用楼梯外,地下或半地下建筑(室)的疏散楼梯间,应符合下列规定。

①室内地面与室外出入口地坪高差大于10m或3层及以上的地下、半地下建筑(室),其疏散楼梯应采用防烟楼梯间,如图3-17所示;其他地下或半地下建筑(室),其疏散楼梯应采用封闭楼梯间。

图3-17 地下、半地下建筑(室)楼梯间首层示意图

②应在首层采用耐火极限不低于2.00h的防火隔墙与其他部位分隔并应直通室外,确需在隔墙上开门时,应采用乙级防火门,如图3-17所示。

③建筑的地下或半地下部分与地上部分不应共用楼梯间,确需共用楼梯间时,应在首层采用耐火极限不低于2.00h的防火隔墙和乙级防火门将地下或半地下部分与地上部分的连通部位完全分隔,并应设置明显的标志。

(5)室外疏散楼梯(图3-18)应符合下列规定。

图3-18 室外疏散楼梯示意图

①栏杆扶手的高度不应小于1.10m,楼梯的净宽度不应小于0.90m。

②倾斜角度不应大于45°。

③梯段和平台均应采用不燃材料制作。平台的耐火极限不应低于1.00h,梯段的耐火极限不应低于0.25h。

④通向室外楼梯的门应采用乙级防火门,并应向外开启。

⑤除疏散门外,楼梯周围2m内的墙面上不应设置门、窗、洞口。疏散门不应正对梯段。

(6)用作丁、戊类厂房内第二安全出口的楼梯可采用金属梯,但其净宽度不应小于0.90m,倾斜角度不应大于45°。

丁、戊类高层厂房,当每层工作平台上的人数不超过2人且各层工作平台上同时工作的人数总和不超过10人时,其疏散楼梯可采用敞开楼梯或利用净宽度不小于0.90m、倾斜角度不大于60°的金属梯。

(7)疏散用楼梯和疏散通道上的阶梯不宜采用螺旋楼梯和扇形踏步;确需采用时,踏步上、下两级所形成的平面角度不应大于10°,且每级离扶手250mm处的踏步深度不应小于220mm。

(8)建筑内的公共疏散楼梯,其两梯段及扶手间的水平净距不宜小于150mm。

(9)高度大于10m的三级耐火等级建筑应设置通至屋顶的室外消防梯。室外消防梯不应面对老虎窗,宽度不应小于0.6m,且宜从离地面3.0m高处设置。

(10)疏散走道在防火分区处应设置常开甲级防火门。

(11)建筑内的疏散门应符合下列规定。

①民用建筑和厂房的疏散门,应采用向疏散方向开启的平开门,不应采用推拉门、卷帘门、吊门、转门和折叠门。除甲、乙类生产车间外,人数不超过60人且每樘门的平均疏散人数不超过30人的房间,其疏散门的开启方向不限。

②仓库的疏散门应采用向疏散方向开启的平开门,但丙、丁、戊类仓库首层靠墙的外侧可采用推拉门或卷帘门。

③开向疏散楼梯或疏散楼梯间的门,当其完全开启时,不应减少楼梯平台的有效宽度。

④人员密集场所内平时需要控制人员随意出入的疏散门和设置门禁系统的住宅、宿舍、公寓建筑的外门,应保证火灾时不需使用钥匙等任何工具即能从内部易于打开,并应在显著位置设置具有使用提示的标识。

(12)用于防火分隔的下沉式广场等室外开敞空间,应符合下列规定。

①分隔后的不同区域通向下沉式广场等室外开敞空间的开口最近边缘之间的水平距离不应小于13m。室外开敞空间除用于人员疏散外不得用于其他商业或可能导致火灾蔓延的用途,其中用于疏散的净面积不应小于169m 2

②下沉式广场等室外开敞空间内应设置不少于1部直通地面的疏散楼梯。当连接下沉广场的防火分区需利用下沉广场进行疏散时,疏散楼梯的总净宽度不应小于任一防火分区通向室外开敞空间的设计疏散总净宽度。

③确需设置防风雨篷时,防风雨篷不应完全封闭,四周开口部位应均匀布置,开口的面积不应小于该空间地面面积的25%,开口高度不应小于1.0m;开口设置百叶时,百叶的有效排烟面积可按百叶通风口面积的60%计算。

(13)防火隔间的设置应符合下列规定。

①防火隔间的建筑面积不应小于6.0m 2

②防火隔间的门应采用甲级防火门。

③不同防火分区通向防火隔间的门不应计入安全出口,门的最小间距不应小于4m。

④防火隔间内部装修材料的燃烧性能应为A级。

⑤不应用于除人员通行外的其他用途。

(14)避难走道的设置应符合下列规定。

①避难走道防火隔墙的耐火极限不应低于3.00h,楼板的耐火极限不应低于1.50h。

②避难走道直通地面的出口不应少于2个,并应设置在不同方向;当避难走道仅与一个防火分区相通且该防火分区至少有1个直通室外的安全出口时,可设置1个直通地面的出口。任一防火分区通向避难走道的门至该避难走道最近直通地面的出口的距离不应大于60m。

③避难走道的净宽度不应小于任一防火分区通向该避难走道的设计疏散总净宽度。

④避难走道内部装修材料的燃烧性能应为A级。

⑤防火分区至避难走道入口处应设置防烟前室,前室的使用面积不应小于6.0m 2 ,开向前室的门应采用甲级防火门,前室开向避难走道的门应采用乙级防火门。

⑥避难走道内应设置消火栓、消防应急照明、应急广播和消防专线电话。

3.1.5 防火门、窗和防火卷帘

3.1.5.1 防火门

(1)防火门的分类 防火门除了具有一般门的功效外,还具有能保证一定时限的耐火、防烟隔火等特殊的功能,通常用于建筑物的防火分区以及重要防火部位,能在一定程度上阻止火灾的蔓延,并能确保人员的疏散。

防火门是指既具有一定的耐火能力,能形成防火分区,控制火灾蔓延,又具有交通、通风、采光功能的维护设施。

我国按照耐火极限把防火门分为甲、乙、丙三级。甲级防火门的耐火极限不低于1.50h,主要用于防火墙上;乙级防火门的耐火极限不低于1.00h,主要用于疏散楼梯间及消防电梯前室的门洞口,以及单元式高层住宅开向楼梯间的户门等;丙级防火门的耐火极限不低于0.50h,主要用于电缆井、管道井、排烟竖井等的检查门。

防火门还有非燃烧体和难燃烧体之分。非燃烧体防火门是由非燃烧的钢板、镀锌铁皮、石棉板、矿棉等制作,而难燃烧体防火门是在可燃的木材、毛毡等外侧钉上铁皮、石棉板等制成。

(2)防火门的构造要求 防火门是由门框、门扇、控制设备和附件等组成,它们的构造和质量对防火门的防火和隔烟性能都有直接影响。

确定防火门的耐火极限,主要是看门的稳定性、完整性,是否被破坏和是否失去隔火作用。这主要与门扇的材料、构造、抗火烧能力(在一定时间内不垮塌、不发生穿透裂缝或孔洞),门扇与门框之间的间隙,门扇的热传导性能(需检测门扇背火面的平均温升或最高温升),以及所选用的铰链等附件(普通铰链火烧后可能失去支撑能力而导致防火门的倒塌,或弹簧铰链中的弹簧因受热而失去弹性)等有关。各种等级的防火门其最低耐火极限分别为:甲级防火门1.50h;乙级防火门1.00h;丙级防火门0.50h。各种常用防火门的构造简述如下。

①单扇钢质防火门 工业用钢质防火门多为无框门(没有门框)。门扇由薄壁型钢或角钢制成框架,两面焊贴厚度为1.5~3mm的冷轧薄钢板,内填矿棉,门厚60mm。火灾时,门在平衡锤吊绳(易熔片系于绳的中段)断开后靠其自重沿斜轨下滑关闭,耐火极限可达1.5h。

民用钢质防火门多为有框门,门框用1.5mm冷轧薄钢板折弯成型,在中间的空腔中填满水泥砂浆或珍珠岩水泥砂浆;镶嵌在门洞中时与预埋铁件焊接;在门框与门扇的接合缝处宜设置能耐高温的密封条。门扇多用0.8~1.0mm冷轧薄钢板卷边与加强筋点焊制成,空腔中以硅酸铝纤维毡或岩棉加硅酸钙板填实,门的标准厚度为45mm。填料如需拼接,不宜对接,宜用榫接。为避免高温时填料体积收缩致使门的耐火性能下降,填充时应加高温黏结剂。

②双扇钢质防火门 门框及门窗的构造与单扇钢质防火门相同。需注意的是,门锁应有一定的耐火性能,特别是锁舌,不应在火灾初期就熔化了;铰链应有足够的强度,否则门扇容易掉角,使门缝局部扩大,失去隔火作用。双扇门的中缝是薄弱环节,门扇变形往往是中缝首先扩大,致使火灾蔓延。处理方法:一是将中缝做成半榫搭接;二是在中缝搭接的内拐角处设置密封条,可较好地防止烟火窜出。

③单扇木质防火门 门框所用木料需经浸渍阻燃处理,或成型后涂刷防火涂料。在门框与门扇的接合缝处嵌防火密封条,以阻止烟火从门隙处窜出。门扇由面板、骨架及填芯材料组合而成。两面的面板用浸渍处理过的五层胶合板制成;中间的木骨架形成框档,在其中填充陶瓷棉或岩棉,并压实。填充料拼接及填充时的要求与钢制防火门相同。门扇的标准厚度为45mm。

④双扇木质防火门 门框及门扇的构造与单扇木质防火门相同。对门锁、铰链和中缝的要求与双扇钢质防火门相同。

木质防火门由于自重轻,制作较为简便和装饰效果好,耐火性能基本上也能符合要求,因此应用较广泛。木板铁皮门和钢质防火门则主要在厂房、仓库中使用。

(3)防火门的设置 防火门的设置应符合下列规定。

①除管井检修门和住宅的户门外,防火门应具有自行关闭功能(图3-19)。其目的是为避免烟气或火势通过门洞窜入疏散通道内,保证疏散通道在一定时间内的相对安全,防火门在平时要尽量保持关闭状态。为方便平时经常有人通行而需要保持常开的防火门,要采取措施使之能在着火时以及人员疏散后能自行关闭,如设置与报警系统联动的控制装置和闭门器等。

图3-19 防火门的自闭功能

②双扇防火门应具有按顺序自行关闭的功能(图3-20)。其目的是为了保证防火门的防火、防烟性能以及人员疏散的需要,防火门的开启方式、方向等均应满足紧急情况下人员迅速开启、快捷疏散的需要。因此要求防火门具有自闭的功能,而对于双扇防火门应具有按顺序关闭的功能,否则容易出现由于关闭顺序混乱而导致防火门不能正常自行关闭。

图3-20 双扇防火门

③设置在建筑内经常有人通行处的防火门宜采用常开防火门。常开防火门应能在火灾时自行关闭,并应具有信号反馈的功能,如图3-21所示。建筑内设置的防火门,既要能保持建筑防火分隔的完整性,又要能方便人员疏散和开启,应保证门的防火、防烟性能符合相应构件的耐火要求以及人员的疏散需要。

图3-21 常开防火门

常开防火门上应设闭门器(或自动闭门器)、顺序器和火灾时能使闭门器工作的释放器和信号反馈装置,由消防控制中心控制,做到发生火灾时,门能自动关闭。

④防火门应能在其内外两侧手动开启。

⑤设置在建筑变形缝附近时,防火门应设置在楼层较多的一侧,并应保证防火门开启时门扇不跨越变形缝(图3-22、图3-23)。发生火灾时,建筑中的变形缝密闭性较差的部位,若设置在变形缝附近的防火门开启后其门扇跨越变形缝,难以形成防火分区间的相互独立性,因此应尽量避免防火门开启后的门扇跨越变形缝。

图3-22 防火门设置在变形缝附近时的要求(一)

图3-23 防火门设置在变形缝附近时的要求(二)

3.1.5.2 防火窗

防火窗是指在一定时间内,连同框架能满足耐火稳定性和耐火完整性要求的窗。在防火间距不足的两建筑物外墙上,或在被防火墙分隔的空间之间,需要采光和通风时,应当采用防火窗。

防火窗的安装形式有开启式和固定式两种,所用的材料有防火铅丝玻璃和防火复合玻璃两种。

单层铅丝玻璃防火窗的耐火极限为0.60h,双层铅丝玻璃防火窗的耐火极限可达1.20h。防火复合玻璃是将普通平板玻璃用防火粘接材料复合成多层玻璃之后形成的一种既透明、又防火的新型防火玻璃。用这种玻璃制成的防火窗,耐火极限可达1.20h以上。

另外,还有一种铁皮窗,它是在木质窗扇和窗框上包裹一种铁皮。白天需要时可以打开通风和采光,不需要时则关闭,可防止外来火种窜入或邻近火灾侵袭,又可防止本建筑起火时向相邻建筑蔓延。这种防火窗常在改善原有旧建筑的防火条件时采用,简便易行。缺点是只能做成活动窗,而不能固定;关窗时也不能采光。

3.1.5.3 防火卷帘

(1)防火卷帘的分类 防火卷帘一般由钢板或铝合金板材制成。钢质防火卷帘门因安装在建筑物中位置的不同而有区别,可分为外墙用防火卷帘门和室内防火卷帘门。其中外墙卷帘也可按耐风压强度和耐火极限区分,而室内用卷帘则按其耐火极限、防烟性能来区分:

①按耐火极限,防火卷帘门可分为耐火极限2.00h和3.00h两种。

②按耐风压强度,可分为490N/m 2 、784N/m 2 、1177N/m 2 三种。

③按帘面数量分为1个和2个。

④按启闭方式分为垂直卷、侧向卷、水平卷三种。

(2)防火卷帘的构造要求 防火卷帘由帘板、卷筒、导轨、传动装置、卷门机和控制系统等部分组成。防火卷帘的帘板平时卷在卷筒轴上,火灾发生时,可通过手动、电动、自动三种传动方式使卷筒轴转动,帘板沿导轨运动将门洞等部位关闭,从而阻止火势的蔓延。

①上卷式金属防火卷帘 上卷式金属防火卷帘构造如图3-24所示。

图3-24 上卷式金属防火卷帘构造

1—帘板部分;2—导轨部分;3—卷筒部分;4—外罩部分;5—电动和手动部分;6—控制箱;7—控制按钮

②侧卷式金属防火卷帘 金属侧卷式防火卷帘由帘板、帘板卷筒、绳卷筒、上下导轨、传动装置、手动机构、电气控制系统等部分组成。这是一种侧向移动形式的金属防火卷帘,其跨度大,适用于建筑物内部有较大尺寸的洞口或是大厅防火分区的防火分隔(如设有中庭的建筑和大跨度建筑的防火分隔)。

侧卷式金属防火卷帘的悬挂滑动构件包括钢制滑轨和滑轮组等。侧帘通过滑轮悬挂在滑轨内依靠牵引力随滑轮前移,使洞口封闭。按照滑轨敷设方式可分为埋设式滑轨和明设式滑轨。埋设式滑轨由于滑轨在火灾时不直接与烟火接触,耐火性能较好。但应采取防火防烟措施,防止烟火进入滑轨内腹,避免悬吊件直接受烟火作用;明设式滑轨直接暴露在外面的承重构件应采取可靠的耐火措施,并应采取防火防烟措施保护滑轨内腹和悬挂件免受烟火的直接作用。

③无机复合防火卷帘 无机复合防火卷帘由卷帘、卷帘轴、导轴、支座、开闭机等组成。卷轴两端由特殊设计的机构支承,能补偿墙面的平面误差,使卷轴在任何情况下均能转动自如。这种防火卷帘的帘面采用无机纤维织物经过特殊处理后制成,具有相对体积小,重量轻,占用空间小,能降低建筑物的承载负荷,满足安装空间要求,背火面温度较低的特点。经国家法定检测部门检测,其耐火极限可达到4.00h,能满足各种建筑防火分隔构件的耐火极限要求。

(3)防火卷帘的设置 防火分区间采用防火卷帘分隔时。应符合下列规定:

①除中庭外,当防火分隔部位的宽度不大于30m时,防火卷帘的宽度不应大于10m;当防火分隔部位的宽度大于30m时,防火卷帘的宽度不应大于该部位宽度的1/3,且不应大于20m。

②防火卷帘应具有火灾时靠自重自动关闭功能。

③除《建筑设计防火规范》(GB 50016—2014)另有规定外,防火卷帘的耐火极限不应低于《建筑设计防火规范》(GB 50016—2014)对所设置部位墙体的耐火极限要求。

当防火卷帘的耐火极限符合现行国家标准《门和卷帘的耐火试验方法》(GB/T 7633—2008)有关耐火完整性和耐火隔热性的判定条件时,可不设置自动喷水灭火系统保护。

当防火卷帘的耐火极限仅符合现行国家标准《门和卷帘的耐火试验方法》(GB/T 7633—2008)有关耐火完整性的判定条件时,应设置自动喷水灭火系统保护。自动喷水灭火系统的设计应符合现行国家标准《自动喷水灭火系统设计规范》(GB 50084—2001)的规定,但火灾延续时间不应小于该防火卷帘的耐火极限。

④防火卷帘应具有防烟性能,与楼板、梁和墙、柱之间的空隙应采用防火封堵材料封堵(图3-25)。采用防火卷帘分隔是工业厂房和部分大型公共建筑的防火分隔措施之一,在采用防火卷帘作防火分隔体时,应采用具有防烟性能的防火卷帘,认真考虑分隔空间的宽度、高度及其在火灾情况下高温烟气对卷帘面、卷轴及电机的影响,防止烟气和火势透过卷帘传播蔓延。

图3-25 防火卷帘的防烟性能

⑤需在火灾时自动降落的防火卷帘,应具有信号反馈的功能。

3.1.6 天桥、栈桥和管沟

①天桥、跨越房屋的栈桥以及供输送可燃材料、可燃气体和甲、乙、丙类液体的栈桥,均应采用不燃材料。

②输送有火灾、爆炸危险物质的栈桥不应兼作疏散通道,如图3-26所示。

图3-26 输送有火灾、爆炸危险物质的栈桥平面示意图

③封闭天桥、栈桥与建筑物连接处的门洞以及敷设甲、乙、丙类液体管道的封闭管沟(廊),均宜采取防止火灾蔓延的措施。

④连接两座建筑物的天桥、连廊,应采取防止火灾在两座建筑间蔓延的措施。当仅供通行的天桥、连廊采用不燃材料,且建筑物通向天桥、连廊的出口符合安全出口的要求时,该出口可作为安全出口。

3.1.7 建筑保温和外墙装饰

(1)建筑的内、外保温系统,宜采用燃烧性能为A级的保温材料,不宜采用B 2 级保温材料,严禁采用B 3 级保温材料;设置保温系统的基层墙体或屋面板的耐火极限应符合《建筑设计防火规范》(GB 50016—2014)的有关规定。

(2)建筑外墙采用内保温系统时,保温系统应符合下列规定。

①对于人员密集场所,用火、燃油、燃气等具有火灾危险性的场所以及各类建筑内的疏散楼梯间、避难走道、避难间、避难层等场所或部位,应采用燃烧性能为A级的保温材料。

②对于其他场所,应采用低烟、低毒且燃烧性能不低于B 1 级的保温材料。

③保温系统应采用不燃材料作防护层。采用燃烧性能为B 1 级的保温材料时,防护层的厚度不应小于10mm。

(3)建筑外墙采用保温材料与两侧墙体构成无空腔复合保温结构体时,该结构体的耐火极限应符合《建筑设计防火规范》(GB 50016—2014)的有关规定;当保温材料的燃烧性能为B 1 、B 2 级时,保温材料两侧的墙体应采用不燃材料且厚度均不应小于50mm。

(4)设置人员密集场所的建筑,其外墙外保温材料的燃烧性能应为A级。

(5)与基层墙体、装饰层之间无空腔的建筑外墙外保温系统,其保温材料应符合下列规定。

①住宅建筑:

a.建筑高度大于100m时,保温材料的燃烧性能应为A级;

b.建筑高度大于27m,但不大于100m时,保温材料的燃烧性能不应低于B 1 级;

c.建筑高度不大于27m时,保温材料的燃烧性能不应低于B 2 级。

②除住宅建筑和设置人员密集场所的建筑外,其他建筑:

a.建筑高度大于50m时,保温材料的燃烧性能应为A级;

b.建筑高度大于24m,但不大于50m时,保温材料的燃烧性能不应低于B 1 级;

c.建筑高度不大于24m时,保温材料的燃烧性能不应低于B 2 级。

(6)除设置人员密集场所的建筑外,与基层墙体、装饰层之间有空腔的建筑外墙外保温系统,其保温材料应符合下列规定。

①建筑高度大于24m时,保温材料的燃烧性能应为A级。

②建筑高度不大于24m时,保温材料的燃烧性能不应低于B 1 级。

(7)除(3)规定的情况外,当建筑的外墙外保温系统按本节规定采用燃烧性能为B 1 、B 2 级的保温材料时,应符合下列规定。

①除采用B 1 级保温材料且建筑高度不大于24m的公共建筑或采用B 1 级保温材料且建筑高度不大于27m的住宅建筑外,建筑外墙上门、窗的耐火完整性不应低于0.50h。

②应在保温系统中每层设置水平防火隔离带。防火隔离带应采用燃烧性能为A级的材料,防火隔离带的高度不应小于300mm。

(8)建筑的外墙外保温系统应采用不燃材料在其表面设置防护层,防护层应将保温材料完全包覆。除(3)规定的情况外,当按本节规定采用B 1 、B 2 级保温材料时,防护层厚度首层不应小于15mm,其他层不应小于5mm。

(9)建筑外墙外保温系统与基层墙体、装饰层之间的空腔,应在每层楼板处采用防火封堵材料封堵。

(10)建筑的屋面外保温系统,当屋面板的耐火极限不低于1.00h时,保温材料的燃烧性能不应低于B 2 级;当屋面板的耐火极限低于1.00h时,不应低于B 1 级。采用B 1 、B 2 级保温材料的外保温系统应采用不燃材料作防护层,防护层的厚度不应小于10mm。

当建筑的屋面和外墙外保温系统均采用B 1 、B 2 级保温材料时,屋面与外墙之间应采用宽度不小于500mm的不燃材料设置防火隔离带进行分隔。

(11)电气线路不应穿越或敷设在燃烧性能为B 1 或B 2 级的保温材料中;确需穿越或敷设时,应采取穿金属管并在金属管周围采用不燃隔热材料进行防火隔离等防火保护措施。设置开关、插座等电气配件的部位周围应采取不燃隔热材料进行防火隔离等防火保护措施。

(12)建筑外墙的装饰层应采用燃烧性能为A级的材料,但建筑高度不大于50m时,可采用B 1 级材料。 5M9Xyevb+gYxW287Xhl2+e6rhLTT5+8ps3z98HHYABeks8//bqcL7wmHxnGmvRS9

点击中间区域
呼出菜单
上一章
目录
下一章
×