购买
下载掌阅APP,畅读海量书库
立即打开
畅读海量书库
扫码下载掌阅APP

2.1 厂房和仓库

2.1.1 火灾危险性分类

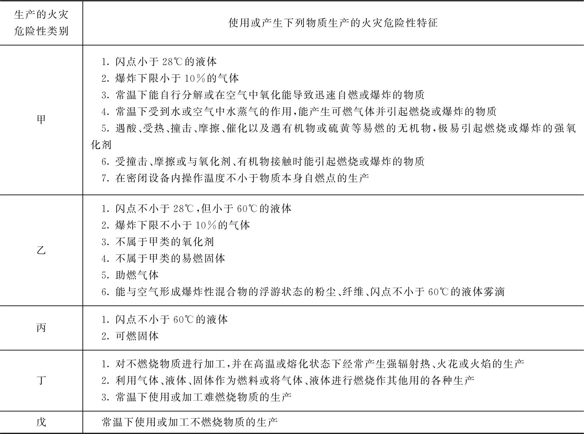
(1)生产的火灾危险性应根据生产中使用或产生的物质性质及其数量等因素划分,可分为甲、乙、丙、丁、戊类,并应符合表2-1的规定。

表2-1 生产的火灾危险性分类

生产的火灾危险性分类受众多因素的影响,设计还需要根据生产工艺、生产过程中使用的原材料以及产品及其副产品的火灾危险性以及生产时的实际环境条件等情况确定。为便于使用,表2-2列举了部分常见生产的火灾危险性分类。

表2-2 生产的火灾危险性分类举例

(2)同一座厂房或厂房的任一防火分区内有不同火灾危险性生产时,厂房或防火分区内的生产火灾危险性类别应按火灾危险性较大的部分确定;当生产过程中使用或产生易燃、可燃物的量较少,不足以构成爆炸或火灾危险时,可按实际情况确定,当符合下述条件之一时,可按火灾危险性较小的部分确定。

①火灾危险性较大的生产部分占本层或本防火分区建筑面积的比例小于5%或丁、戊类厂房内的油漆工段小于10%,且发生火灾事故时不足以蔓延到其他部位或火灾危险性较大的生产部分采取了有效的防火措施;

②丁、戊类厂房内的油漆工段,当采用封闭喷漆工艺,封闭喷漆空间内保持负压、油漆工段设置可燃气体探测报警系统或自动抑爆系统,且油漆工段占所在防火分区建筑面积的比例不大于20%。

(3)储存物品的火灾危险性应根据储存物品的性质和储存物品中的可燃物数量等因素划分,可分为甲、乙、丙、丁、戊类,并应符合表2-3的规定。

表2-3 储存物品的火灾危险性分类

表2-4列举了一些常见储存物品的火灾危险性分类,供设计参考。

表2-4 储存物品的火灾危险性分类举例

(4)同一座仓库或仓库的任一防火分区内储存不同火灾危险性物品时,仓库或防火分区的火灾危险性应按火灾危险性最大的物品确定。

(5)丁、戊类储存物品仓库的火灾危险性,当可燃包装重量大于物品本身重量1/4或可燃包装体积大于物品本身体积的1/2时,应按丙类确定,如图2-1所示。

图2-1 丁、戊类仓库平面示意图

2.1.2 厂房和仓库的耐火等级

①厂房和仓库的耐火等级可分为一、二、三、四级,相应建筑构件的燃烧性能和耐火极限,除《建筑设计防火规范》(GB 50016—2014)另有规定外,不应低于表2-5的规定。

表2-5 不同耐火等级厂房和仓库建筑构件的燃烧性能和耐火极限

注:二级耐火等级建筑内采用不燃材料的吊顶,其耐火极限不限。

②高层厂房,甲、乙类厂房的耐火等级不应低于二级,建筑面积不大于300m 2 的独立甲、乙类单层厂房可采用三级耐火等级的建筑。

③单、多层丙类厂房和多层丁、戊类厂房的耐火等级不应低于三级。

使用或产生丙类液体的厂房和有火花、赤热表面、明火的丁类厂房,其耐火等级均不应低于二级,当为建筑面积不大于500m 2 的单层丙类厂房或建筑面积不大于1000m 2 的单层丁类厂房时,可采用三级耐火等级的建筑。

④使用或储存特殊贵重的机器、仪表、仪器等设备或物品的建筑,其耐火等级不应低于二级。

⑤锅炉房的耐火等级不应低于二级,当为燃煤锅炉房且锅炉的总蒸发量不大于4t/h时,可采用三级耐火等级的建筑,如图2-2所示。

图2-2 锅炉房剖面示意图

⑥油浸变压器室、高压配电装置室的耐火等级不应低于二级,其他防火设计应符合现行国家标准《火力发电厂与变电站设计防火规范》GB 50229—2006等标准的规定。

⑦高架仓库、高层仓库、甲类仓库、多层乙类仓库和储存可燃液体的多层丙类仓库,其耐火等级不应低于二级。

单层乙类仓库,单层丙类仓库,储存可燃固体的多层丙类仓库和多层丁、戊类仓库,其耐火等级不应低于三级。

⑧粮食筒仓的耐火等级不应低于二级;二级耐火等级的粮食筒仓可采用钢板仓。

粮食平房仓的耐火等级不应低于三级;二级耐火等级的散装粮食平房仓可采用无防火保护的金属承重构件。

⑨甲、乙类厂房和甲、乙、丙类仓库内的防火墙,其耐火极限不应低于4.00h。

⑩一、二级耐火等级单层厂房(仓库)的柱,其耐火极限分别不应低于2.50h和2.00h。

采用自动喷水灭火系统全保护的一级耐火等级单、多层厂房(仓库)的屋顶承重构件,其耐火极限不应低于1.00h。

除甲、乙类仓库和高层仓库外,一、二级耐火等级建筑的非承重外墙,当采用不燃性墙体时,其耐火极限不应低于0.25h;当采用难燃性墙体时,不应低于0.50h。

4层及4层以下的一、二级耐火等级丁、戊类地上厂房(仓库)的非承重外墙,当采用不燃性墙体时,其耐火极限不限。

二级耐火等级厂房(仓库)内的房间隔墙,当采用难燃性墙体时,其耐火极限应提高0.25h。

二级耐火等级多层厂房和多层仓库内采用预应力钢筋混凝土的楼板,其耐火极限不应低于0.75h。

一、二级耐火等级厂房(仓库)的上人平屋顶,其屋面板的耐火极限分别不应低于1.50h和1.00h,如图2-3所示。

图2-3 一、二级耐火等级厂房(仓库)

一、二级耐火等级厂房(仓库)的屋面板应采用不燃材料。

屋面防水层宜采用不燃、难燃材料,当采用可燃防水材料且铺设在可燃、难燃保温材料上时,防水材料或可燃、难燃保温材料应采用不燃材料作防护层,如图2-4所示。

图2-4 一、二级耐火等级厂房(仓库)屋面板材料

建筑中的非承重外墙、房间隔墙和屋面板,当确需采用金属夹芯板材时,其芯材应为不燃材料,且耐火极限应符合《建筑设计防火规范》(GB 50016—2014)有关规定。

除《建筑设计防火规范》(GB 50016—2014)另有规定外,以木柱承重且墙体采用不燃材料的厂房(仓库),其耐火等级可按四级确定。

预制钢筋混凝土构件的节点外露部位,应采取防火保护措施,且节点的耐火极限不应低于相应构件的耐火极限。

2.1.3 厂房和仓库的层数、面积和平面布置

(1)除《建筑设计防火规范》(GB 50016—2014)另有规定外,厂房的层数和每个防火分区的最大允许建筑面积应符合表2-6的规定。

表2-6 厂房的层数和每个防火分区的最大允许建筑面积

注:1.防火分区之间应采用防火墙分隔。除甲类厂房外的一、二级耐火等级厂房,当其防火分区的建筑面积大于本表规定,且设置防火墙确有困难时,可采用防火卷帘或防火分隔水幕分隔。采用防火卷帘时,应符合《建筑设计防火规范》(GB 50016—2014)第6.5.3条的规定;采用防火分隔水幕时,应符合现行国家标准《自动喷水灭火系统设计规范(2005年版)》(GB 50084—2001)的规定。

2.除麻纺厂房外,一级耐火等级的多层纺织厂房和二级耐火等级的单、多层纺织厂房,其每个防火分区的最大允许建筑面积可按本表的规定增加0.5倍,但厂房内的原棉开包、清花车间与厂房内其他部位之间均应采用耐火极限不低于2.50h的防火隔墙分隔,需要开设门、窗、洞口时。应设置甲级防火门、窗。

3.一、二级耐火等级的单、多层造纸生产联合厂房,其每个防火分区的最大允许建筑面积可按本表的规定增加1.5倍。一、二级耐火等级的湿式造纸联合厂房,当纸机烘缸罩内设置自动灭火系统,完成工段设置有效灭火设施保护时,其每个防火分区的最大允许建筑面积可按工艺要求确定。

4.一、二级耐火等级的谷物筒仓工作塔,当每层工作人数不超过2人时,其层数不限。

5.一、二级耐火等级卷烟生产联合厂房内的原料、备料及成组配方、制丝、储丝和卷接包、辅料周转、成品暂存、二氧化碳膨胀烟丝等生产用房应划分独立的防火分隔单元,当工艺条件许可时,应采用防火墙进行分隔。其中制丝、储丝和卷接包车间可划分为一个防火分区,且每个防火分区的最大允许建筑面积可按工艺要求确定,但制丝、储丝及卷接包车间之间应采用耐火极限不低于2.00h的防火隔墙和1.00h的楼板进行分隔。厂房内各水平和竖向防火分隔之间的开口应采取防止火灾蔓延的措施。

6.厂房内的操作平台、检修平台,当使用人数少于10人时,平台的面积可不计入所在防火分区的建筑面积内。

7.“—”表示不允许。

(2)除《建筑设计防火规范》(GB 50016—2014)另有规定外,仓库的层数和面积应符合表2-7的规定。

表2-7 仓库的层数和面积

注:1.仓库内的防火分区之间必须采用防火墙分隔,甲、乙类仓库内防火分区之间的防火墙不应开设门、窗、洞口;地下或半地下仓库(包括地下或半地下室)的最大允许占地面积,不应大于相应类别地上仓库的最大允许占地面积。

2.石油库区内的桶装油品仓库应符合现行国家标准《石油库设计规范》(GB 50074—2014)的规定。

3.一、二级耐火等级的煤均化库,每个防火分区的最大允许建筑面积不应大于12000m 2

4.独立建造的硝酸铵仓库、电石仓库、聚乙烯等高分子制品仓库、尿素仓库、配煤仓库、造纸厂的独立成品仓库,当建筑的耐火等级不低于二级时,每座仓库的最大允许占地面积和每个防火分区的最大允许建筑面积可按本表的规定增加1.0倍。

5.一、二级耐火等级粮食平房仓的最大允许占地面积不应大于12000m 2 ,每个防火分区的最大允许建筑面积不应大于3000m 2 ;三级耐火等级粮食平房仓的最大允许占地面积不应大于3000m 2 ,每个防火分区的最大允许建筑面积不应大于1000m 2

6.一、二级耐火等级且占地面积不大于2000m 2 的单层棉花库房,其防火分区的最大允许建筑面积不应大于2000m 2

7.一、二级耐火等级冷库的最大允许占地面积和防火分区的最大允许建筑面积,应符合现行国家标准《冷库设计规范》(GB 50072—2010)的规定。

8.“—”表示不允许。

(3)厂房内设置自动灭火系统时,每个防火分区的最大允许建筑面积可按表2-6的规定增加1.0倍。当丁、戊类的地上厂房内设置自动灭火系统时,每个防火分区的最大允许建筑面积不限。厂房内局部设置自动灭火系统时,其防火分区的增加面积可按该局部面积的1.0倍计算。

仓库内设置自动灭火系统时,除冷库的防火分区外,每座仓库的最大允许占地面积和每个防火分区的最大允许建筑面积可按表2-7的规定增加1.0倍。

(4)甲、乙类生产场所(仓库)不应设置在地下或半地下,如图2-5所示。

图2-5 甲、乙类生产场所(仓库)剖面示意图

(5)员工宿舍严禁设置在厂房内,如图2-6所示。

图2-6 厂房内严禁设置员工宿舍示意图

办公室、休息室等不应设置在甲、乙类厂房内,确需贴邻本厂房时,其耐火等级不应低于二级,并应采用耐火极限不低于3.00h的防爆墙与厂房分隔,且应设置独立的安全出口,如图2-7所示。

图2-7 办公室、休息室贴邻甲、乙类厂房设置平面图

办公室、休息室设置在丙类厂房内时,应采用耐火极限不低于2.50h的防火隔墙和1.00h的楼板与其他部位分隔,并应至少设置1个独立的安全出口。如隔墙上需开设相互连通的门时,应采用乙级防火门,如图2-8所示。

图2-8 丙类厂房内设置办公室、休息室示意图

(6)厂房内设置中间仓库时,应符合下列规定。

①甲、乙类中间仓库应靠外墙布置,其储量不宜超过1昼夜的需要量。

②甲、乙、丙类中间仓库应采用防火墙和耐火极限不低于1.50h的不燃性楼板与其他部位分隔。

③丁、戊类中间仓库应采用耐火极限不低于2.00h的防火隔墙和1.00h的楼板与其他部位分隔。

④仓库的耐火等级和面积应符合(2)和(3)的规定。

(7)厂房内的丙类液体中间储罐应设置在单独房间内,其容量不应大于5m 3 。设置中间储罐的房间,应采用耐火极限不低于3.00h的防火隔墙和1.50h的楼板与其他部位分隔,房间门应采用甲级防火门。

(8)变、配电站不应设置在甲、乙类厂房内或贴邻,且不应设置在爆炸性气体、粉尘环境的危险区域内。供甲、乙类厂房专用的10kV及以下的变、配电站,当采用无门、窗、洞口的防火墙分隔时,可一面贴邻,并应符合现行国家标准《爆炸危险环境电力装置设计规范》(GB 50058—2014)等标准的规定。

乙类厂房的配电站确需在防火墙上开窗时,应采用甲级防火窗。

(9)员工宿舍严禁设置在仓库内 办公室、休息室等严禁设置在甲、乙类仓库内,也不应贴邻。

办公室、休息室设置在丙、丁类仓库内时,应采用耐火极限不低于2.50h的防火隔墙和1.00h的楼板与其他部位分隔,并应设置独立的安全出口。隔墙上需开设相互连通的门时,应采用乙级防火门。

(10)物流建筑的防火设计应符合下列规定。

①当建筑功能以分拣、加工等作业为主时,应按《建筑设计防火规范》(GB 50016—2014)有关厂房的规定确定,其中仓储部分应按中间仓库确定。

②当建筑功能以仓储为主或建筑难以区分主要功能时,应按《建筑设计防火规范》(GB 50016—2014)有关仓库的规定确定,但当分拣等作业区采用防火墙与储存区完全分隔时,作业区和储存区的防火要求可分别按《建筑设计防火规范》(GB 50016—2014)有关厂房和仓库的规定确定。其中,当分拣等作业区采用防火墙与储存区完全分隔且符合下列条件时,除自动化控制的丙类高架仓库外,储存区的防火分区最大允许建筑面积和储存区部分建筑的最大允许占地面积,可按表2-7(不含注)的规定增加3.0倍。

a.储存除可燃液体、棉、麻、丝、毛及其他纺织品、泡沫塑料等物品外的丙类物品且建筑的耐火等级不低于一级。

b.储存丁、戊类物品且建筑的耐火等级不低于二级。

c.建筑内全部设置自动水灭火系统和火灾自动报警系统。

(11)甲、乙类厂房(仓库)内不应设置铁路线 需要出入蒸汽机车和内燃机车的丙、丁、戊类厂房(仓库),其屋顶应采用不燃材料或采取其他防火措施。

2.1.4 厂房的防火间距

(1)除《建筑设计防火规范》(GB 50016—2014)另有规定外,厂房之间及与乙、丙、丁、戊类仓库、民用建筑等的防火间距不应小于表2-8的规定,与甲类仓库的防火间距应符合表2-10的规定。

表2-8 厂房之间及与乙、丙、丁、戊类仓库、民用建筑等的防火间距

注:1.乙类厂房与重要公共建筑的防火间距不宜小于50m,与明火或散发火花地点,不宜小于30m。单、多层戊类厂房之间及与戊类仓库的防火间距可按本表的规定减少2m,与民用建筑的防火间距可将戊类厂房等同民用建筑按表1-3的规定执行。为丙、丁、戊类厂房服务而单独设置的生活用房应按民用建筑确定,与所属厂房的防火间距不应小于6m。确需相邻布置时,应符合本表注2、3的规定。

2.两座厂房相邻较高一面外墙为防火墙,或相邻两座高度相同的一、二级耐火等级建筑中相邻任一侧外墙为防火墙且屋顶的耐火极限不低于1.00h时,其防火间距不限,但甲类厂房之间不应小于4m。两座丙、丁、戊类厂房相邻两面外墙均为不燃性墙体,当无外露的可燃性屋檐,每面外墙上的门、窗、洞口面积之和各不大于外墙面积的5%,且门、窗、洞口不正对开设时,其防火间距可按本表的规定减少25%。甲、乙类厂房(仓库)不应与《建筑设计防火规范》(GB 50016—2014)第3.3.5条规定外的其他建筑贴邻。

3.两座一、二级耐火等级的厂房,当相邻较低一面外墙为防火墙且较低一座厂房的屋顶无天窗,屋顶的耐火极限不低于1.00h,或相邻较高一面外墙的门、窗等开口部位设置甲级防火门、窗或防火分隔水幕或按《建筑设计防火规范》(GB 50016—2014)第6.5.3条的规定设置防火卷帘时,甲、乙类厂房之间的防火间距不应小于6m;丙、丁、戊类厂房之间的防火间距不应小于4m。

4.发电厂内的主变压器,其油量可按单台确定。

5.耐火等级低于四级的既有厂房,其耐火等级可按四级确定。

6.当丙、丁、戊类厂房与丙、丁、戊类仓库相邻时,应符合本表注2、3的规定。

(2)甲类厂房与重要公共建筑的防火间距不应小于50m,与明火或散发火花地点的防火间距不应小于30m。

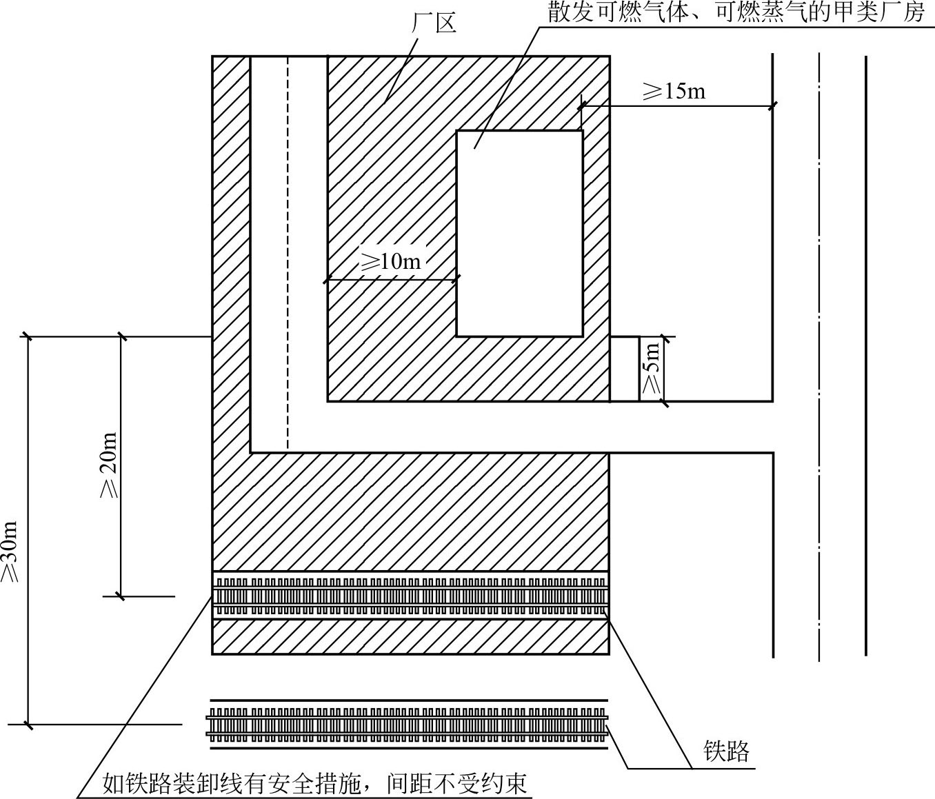
(3)散发可燃气体、可燃蒸气的甲类厂房与铁路、道路等的防火间距不应小于表2-9的规定,但甲类厂房所属厂内铁路装卸线当有安全措施时,防火间距不受表2-9规定的限制,如图2-9所示。

表2-9 散发可燃气体、可燃蒸气的甲类厂房与铁路、道路等的防火间距

图2-9 散发可燃气体、可燃蒸气的甲类厂房与铁路、道路

(4)高层厂房与甲、乙、丙类液体储罐,可燃、助燃气体储罐,液化石油气储罐,可燃材料堆场(除煤和焦炭场外)的防火间距,应符合《建筑设计防火规范》(GB 50016—2014)第4章的规定,且不应小于13m。

(5)丙、丁、戊类厂房与民用建筑的耐火等级均为一、二级时,丙、丁、戊类厂房与民用建筑的防火间距可适当减小,但应符合下列规定。

①当较高一面外墙为无门、窗、洞口的防火墙,或比相邻较低一座建筑屋面高15m及以下范围内的外墙为无门、窗、洞口的防火墙时,其防火间距可不限,如图2-10所示。

图2-10 民用建筑或丙、丁、戊类厂房较高一面外墙为无

②相邻较低一面外墙为防火墙,且屋顶无天窗或洞口、屋顶的耐火极限不低于1.00h,或相邻较高一面外墙为防火墙,且墙上开口部位采取了防火措施,其防火间距可适当减小,但不应小于4m,如图2-11所示。

图2-11 民用建筑或丙、丁、戊类厂房较低一面外墙为无

(6)厂房外附设化学易燃物品的设备,其外壁与相邻厂房室外附设设备的外壁或相邻厂房外墙的防火间距,不应小于表2-8的规定。用不燃材料制作的室外设备,可按一、二级耐火等级建筑确定,如图2-12所示。

图2-12 厂房外有室外化学易燃易爆物品设备时的防火间距

L 1 L 2 —室外设备C、D外壁分别与A、B厂房的间距; L 3 L 4 —室外设备C、D外壁与相邻其他厂房之间的距离

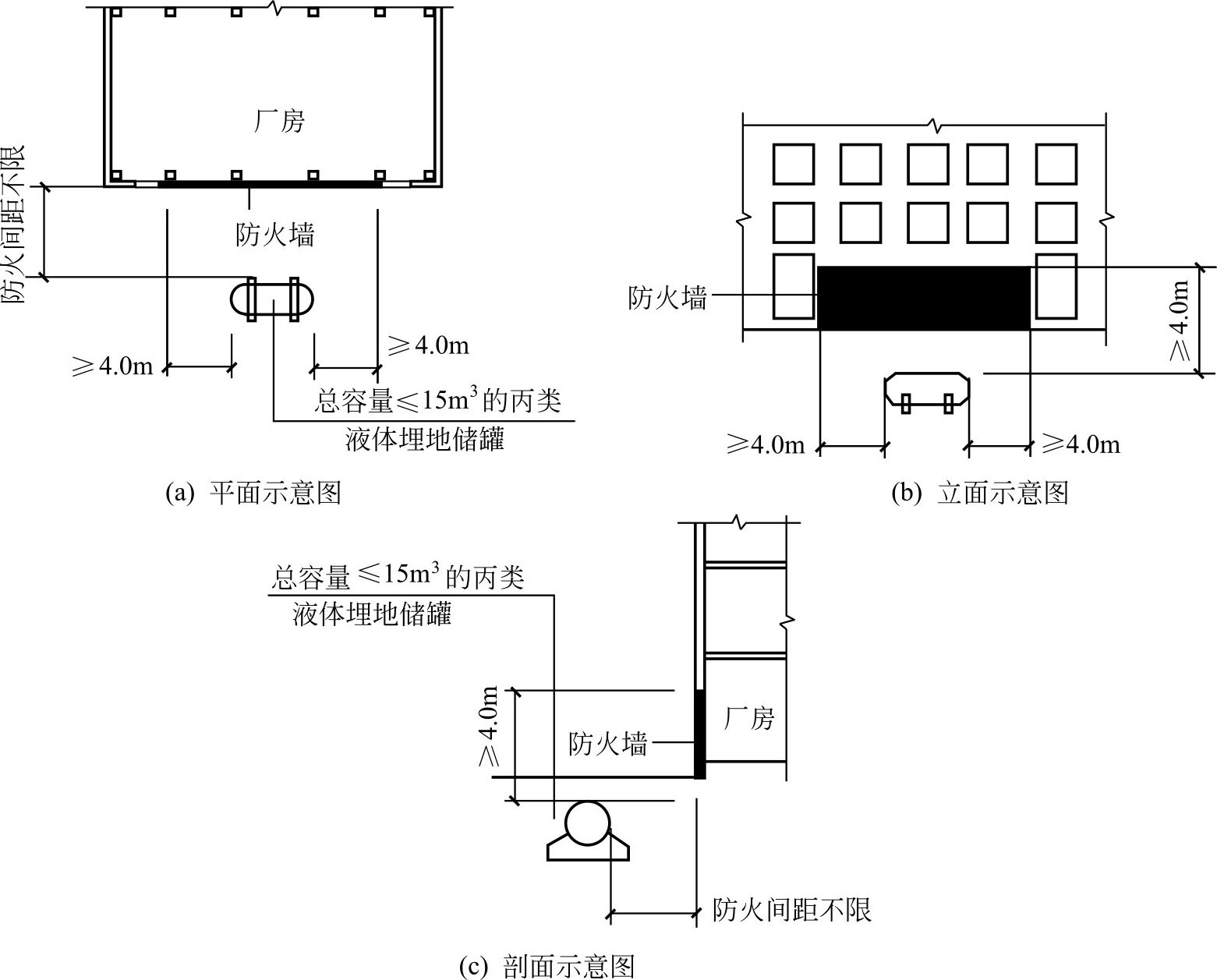
总容量不大于15m 3 的丙类液体储罐,当直埋于厂房外墙外,且面向储罐一面4.0m范围内的外墙为防火墙时,其防火间距可不限,如图2-13所示。

图2-13 厂房外墙外的防火墙示意图

(7)同一座“U”形或“山”形厂房中相邻两翼之间的防火间距,不宜小于表2-8的规定,但当厂房的占地面积小于表2-6规定的每个防火分区最大允许建筑面积时,其防火间距可为6m。

(8)除高层厂房和甲类厂房外,其他类别的数座厂房占地面积之和小于表2-6规定的防火分区最大允许建筑面积(按其中较小者确定,但防火分区的最大允许建筑面积不限者,不应大于10000m 2 )时,可成组布置。当厂房建筑高度不大于7m时,组内厂房之间的防火间距不应小于4m;当厂房建筑高度大于7m时,组内厂房之间的防火间距不应小于6m。

组与组或组与相邻建筑的防火间距,应根据相邻两座中耐火等级较低的建筑,按表2-8的规定确定,如图2-14所示。

图2-14 组与组或组与相邻建筑的防火间距平面布置示意图

L 1 —组和组间相邻厂房之间的距离; L 2 —组中厂房与邻近建筑物之间的距离

(9)一级汽车加油站、一级汽车加气站和一级汽车加油加气合建站不应布置在城市建成区内。

(10)汽车加油、加气站和加油加气合建站的分级,汽车加油、加气站和加油加气合建站及其加油(气)机、储油(气)罐等与站外明火或散发火花地点、建筑、铁路、道路的防火间距以及站内各建筑或设施之间的防火间距,应符合现行国家标准《汽车加油加气站设计与施工规范》(GB 50156—2012)的规定。

(11)电力系统电压为35~500kV且每台变压器容量不小于10MV·A的室外变、配电站以及工业企业的变压器总油量大于5t的室外降压变电站,与其他建筑的防火间距不应小于《建筑设计防火规范》(GB 50016—2014)第3.4.1条和第3.5.1条的规定。

(12)厂区围墙与厂区内建筑的间距不宜小于5m,围墙两侧建筑的间距应满足相应建筑的防火间距要求。

2.1.5 仓库的防火间距

(1)甲类仓库之间及与其他建筑、明火或散发火花地点、铁路、道路等的防火间距不应小于表2-10的规定。

表2-10 甲类仓库之间及与其他建筑、明火或散发火花地点、铁路、道路等的防火间距

注:甲类仓库之间的防火间距,当第3、4项物品储量不大于2t,第1、2、5、6项物品储量不大于5t时,不应小于12m。甲类仓库与高层仓库的防火间距不应小于13m。

(2)除《建筑设计防火规范》(GB 50016—2014)另有规定外,乙、丙、丁、戊类仓库之间及与民用建筑的防火间距,不应小于表2-11的规定。

表2-11 乙、丙、丁、戊类仓库之间及与民用建筑的防火间距

注:1.单、多层戊类仓库之间的防火间距,可按本表的规定减少2m。

2.两座仓库的相邻外墙均为防火墙时,防火间距可以减小,但丙类仓库,不应小于6m;丁、戊类仓库,不应小于4m。两座仓库相邻较高一面外墙为防火墙,或相邻两座高度相同的一、二级耐火等级建筑中相邻任一侧外墙为防火墙且屋顶的耐火极限不低于1.00h,且总占地面积不大于表2-7中一座仓库的最大允许占地面积规定时,其防火间距不限。

3.除乙类第6项(表2-3)物品外的乙类仓库,与民用建筑的防火间距不宜小于25m,与重要公共建筑的防火间距不应小于50m,与铁路、道路等的防火间距不宜小于表2-10中甲类仓库与铁路、道路等的防火间距。

(3)丁、戊类仓库与民用建筑的耐火等级均为一、二级时,仓库与民用建筑的防火间距可适当减小,但应符合下列规定。

①当较高一面外墙为无门、窗、洞口的防火墙,或比相邻较低一座建筑屋面高15m及以下范围内的外墙为无门、窗、洞口的防火墙时,其防火间距不限,如图2-15所示。

图2-15 民用建筑或丁、戊类仓库较高一面外墙为无门

②相邻较低一面外墙为防火墙,且屋顶无天窗或洞口、屋顶耐火极限不低于1.00h,或相邻较高一面外墙为防火墙,且墙上开口部位采取了防火措施,其防火间距可适当减小,但不应小于4m,如图2-16所示。

图2-16 民用建筑或丁、戊类仓库较低一面外墙为无门

(4)粮食筒仓与其他建筑、粮食筒仓组之间的防火间距,不应小于表2-12的规定。

表2-12 粮食筒仓与其他建筑、粮食筒仓组之间的防火间距

注:1.当粮食立筒仓、粮食浅圆仓与工作塔、接收塔、发放站为一个完整工艺单元的组群时,组内各建筑之间的防火间距不受本表限制。

2.粮食浅圆仓组内每个独立仓的储量不应大于10000t。

(5)库区围墙与库区内建筑的间距不宜小于5m,围墙两侧建筑的间距应满足相应建筑的防火间距要求。

2.1.6 厂房和仓库的防爆

(1)有爆炸危险的甲、乙类厂房宜独立设置,并宜采用敞开或半敞开式。其承重结构宜采用钢筋混凝土或钢框架、排架结构,如图2-17所示。

图2-17 有爆炸危险的甲、乙类厂房

(2)有爆炸危险的厂房或厂房内有爆炸危险的部位应设置泄压设施。

(3)泄压设施宜采用轻质屋面板、轻质墙体和易于泄压的门、窗等,应采用安全玻璃等在爆炸时不产生尖锐碎片的材料。

泄压设施的设置应避开人员密集场所和主要交通道路,并宜靠近有爆炸危险的部位,如图2-18所示。

图2-18 泄压设施的设置

作为泄压设施的轻质屋面板和墙体的质量不宜大于60kg/m 2

屋顶上的泄压设施应采取防冰雪积聚措施,如图2-19所示。

图2-19 有爆炸危险的厂房

(4)厂房的泄压面积宜按下式计算,但当厂房的长径比(表2-13注1)大于3时,宜将建筑划分为长径比不大于3的多个计算段,各计算段中的公共截面不得作为泄压面积。

式中 A ——泄压面积,m 2

V ——厂房的容积,m 3

C ——泄压比,可按表2-13选取,m 2 /m 3

表2-13 厂房内爆炸性危险物质的类别与泄压比规定值

注:1.长径比为建筑平面几何外形尺寸中的最长尺寸与其横截面周长的积和4.0倍的建筑横截面积之比。

2. K 是指粉尘爆炸指数。

(5)散发较空气轻的可燃气体、可燃蒸气的甲类厂房,宜采用轻质屋面板作为泄压面积。顶棚应尽量平整、无死角,厂房上部空间应通风良好,如图2-20所示。

图2-20 散发较空气轻的可燃气体、可燃蒸气的甲类厂房

注:爆炸危险区域内的通风,其空气流量能使该空间内含有爆炸危险物质的混合气体或粉尘的浓度始终保持在爆炸下限值的25%以下时,可定为通风良好。

(6)散发较空气重的可燃气体、可燃蒸气的甲类厂房和有粉尘、纤维爆炸危险的乙类厂房,应符合下列规定(图2-21)。

图2-21 散发较空气重的可燃气体、可燃蒸气的甲类厂房

①应采用不发火花的地面。采用绝缘材料作整体面层时,应采取防静电措施。

②散发可燃粉尘、纤维的厂房,其内表面应平整、光滑,并易于清扫。

③厂房内不宜设置地沟,确需设置时,其盖板应严密,地沟应采取防止可燃气体、可燃蒸气和粉尘、纤维在地沟积聚的有效措施,且应在与相邻厂房连通处采用防火材料密封。

(7)有爆炸危险的甲、乙类生产部位,宜布置在单层厂房靠外墙的泄压设施或多层厂房顶层靠外墙的泄压设施附近,如图2-22所示。

图2-22 有爆炸危险的甲、乙类生产部位

有爆炸危险的设备宜避开厂房的梁、柱等主要承重构件布置。

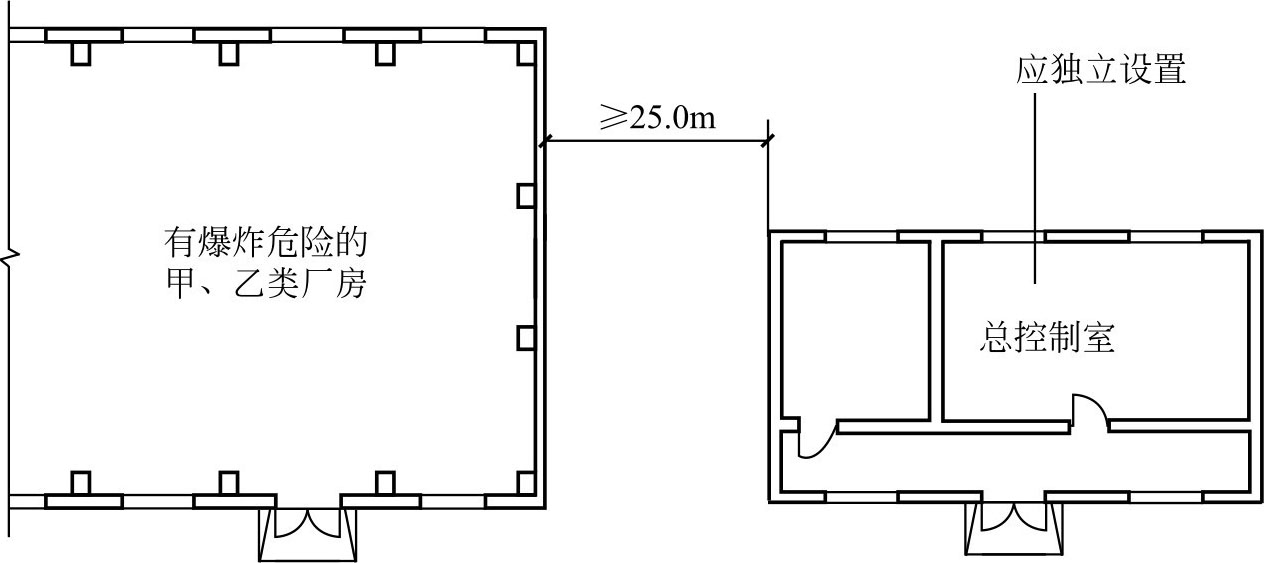
(8)有爆炸危险的甲、乙类厂房的总控制室应独立设置,如图2-23所示。

图2-23 独立设置的总控制室

(9)有爆炸危险的甲、乙类厂房的分控制室宜独立设置,当贴邻外墙设置时,应采用耐火极限不低于3.00h的防火隔墙与其他部位分隔,如图2-24所示。

图2-24 独立设置的分控制室

(10)有爆炸危险区域内的楼梯间、室外楼梯或有爆炸危险的区域与相邻区域连通处,应设置门斗等防护措施。门斗的隔墙应为耐火极限不应低于2.00h的防火隔墙,门应采用甲级防火门并应与楼梯间的门错位设置,如图2-25所示。

图2-25 有爆炸危险的区域

(11)使用和生产甲、乙、丙类液体的厂房,其管、沟不应与相邻厂房的管、沟相通(图2-26),下水道应设置隔油设施,如图2-27所示。

图2-26 使用和生产甲、乙、丙类液体的厂房

图2-27 隔油池平、剖面示意图

(12)甲、乙、丙类液体仓库应设置防止液体流散的设施,如图2-28所示。遇湿会发生燃烧爆炸的物品仓库应采取防止水浸渍的措施,如图2-29所示。

图2-28 甲、乙、丙类液体仓库

图2-29 遇湿会发生燃烧爆炸的物品仓库

(13)有粉尘爆炸危险的筒仓,其顶部盖板应设置必要的泄压设施。

粮食筒仓工作塔和上通廊的泄压面积应按(4)的规定计算确定。有粉尘爆炸危险的其他粮食储存设施应采取防爆措施。

(14)有爆炸危险的仓库或仓库内有爆炸危险的部位,宜按本节规定采取防爆措施、设置泄压设施。

2.1.7 厂房的安全疏散

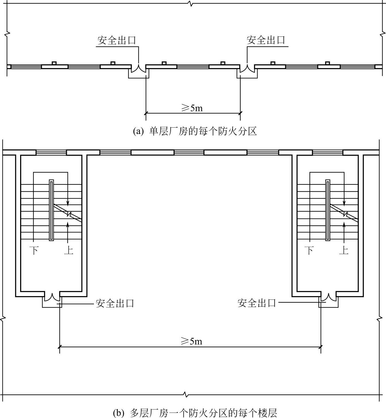
(1)厂房的安全出口应分散布置。每个防火分区或一个防火分区的每个楼层,其相邻2个安全出口最近边缘之间的水平距离不应小于5m,如图2-30所示。

图2-30 厂房的安全出口

(2)厂房内每个防火分区或一个防火分区内的每个楼层,其安全出口的数量应经计算确定,且不应少于2个;当符合下列条件时,可设置1个安全出口:

①甲类厂房,每层建筑面积不大于100m 2 ,且同一时间的作业人数不超过5人;

②乙类厂房,每层建筑面积不大于150m 2 ,且同一时间的作业人数不超过10人;

③丙类厂房,每层建筑面积不大于250m 2 ,且同一时间的作业人数不超过20人;

④丁、戊类厂房,每层建筑面积不大于400m 2 ,且同一时间的作业人数不超过30人;

⑤地下或半地下厂房(包括地下室或半地下室),每层建筑面积不大于50m 2 ,且同一时间的作业人数不超过15人。

(3)地下或半地下厂房(包括地下室或半地下室),当有多个防火分区相邻布置,并采用防火墙分隔时,每个防火分区可利用防火墙上通向相邻防火分区的甲级防火门作为第二安全出口,但每个防火分区必须至少有1个直通室外的独立安全出口,如图2-31所示。

图2-31 厂房的地下室、半地下室平面示意图

(4)厂房内任一点至最近安全出口的直线距离不应大于表2-14的规定。

表2-14 厂房内任一点至最近安全出口的直线距离

(5)厂房内疏散楼梯、走道、门的各自总净宽度,应根据疏散人数按每100人的最小疏散净宽度不小于表2-15的规定计算确定。但疏散楼梯的最小净宽度不宜小于1.10m,疏散走道的最小净宽度不宜小于1.40m,门的最小净宽度不宜小于0.90m。当每层疏散人数不相等时,疏散楼梯的总净宽度应分层计算,下层楼梯总净宽度应按该层及以上疏散人数最多一层的疏散人数计算。

表2-15 厂房内疏散楼梯、走道和门的每100人最小疏散净宽度

首层外门的总净宽度应按该层及以上疏散人数最多一层的疏散人数计算,且该门的最小净宽度不应小于1.20m。

(6)高层厂房和甲、乙、丙类多层厂房的疏散楼梯应采用封闭楼梯间或室外楼梯。建筑高度大于32m且任一层人数超过10人的厂房,应采用防烟楼梯间或室外楼梯,如图2-32所示。

图2-32 疏散楼梯

2.1.8 仓库的安全疏散

①仓库的安全出口应分散布置。每个防火分区或一个防火分区的每个楼层,其相邻2个安全出口最近边缘之间的水平距离不应小于5m,如图2-33所示。

图2-33 仓库的安全出口

②每座仓库的安全出口不应少于2个,当一座仓库的占地面积不大于300m 2 时,可设置1个安全出口。仓库内每个防火分区通向疏散走道、楼梯或室外的出口不宜少于2个,当防火分区的建筑面积不大于100m 2 时,可设置1个出口。通向疏散走道或楼梯的门应为乙级防火门,如图2-34所示。

图2-34 仓库防火分区的安全出口

③地下或半地下仓库(包括地下室或半地下室)的安全出口不应少于2个;当建筑面积不大于100m 2 时,可设置1个安全出口。

地下或半地下仓库(包括地下室或半地下室),当有多个防火分区相邻布置并采用防火墙分隔时,每个防火分区可利用防火墙上通向相邻防火分区的甲级防火门作为第二安全出口,但每个防火分区必须至少有1个直通室外的安全出口。

④冷库、粮食筒仓、金库的安全疏散设计应分别符合现行国家标准《冷库设计规范》(GB 50072—2010)和《粮食钢板筒仓设计规范》(GB 50322—2011)等标准的规定。

⑤粮食筒仓上层面积小于1000m 2 ,且作业人数不超过2人时,可设置1个安全出口。

⑥仓库、筒仓中符合《建筑设计防火规范》(GB 50016—2014)第6.4.5条规定的室外金属梯,可作为疏散楼梯,但筒仓室外楼梯平台的耐火极限不应低于0.25h。

⑦高层仓库的疏散楼梯应采用封闭楼梯间。

⑧除一、二级耐火等级的多层戊类仓库外,其他仓库内供垂直运输物品的提升设施宜设置在仓库外,确需设置在仓库内时,应设置在井壁的耐火极限不低于2.00h的井筒内。室内外提升设施通向仓库的入口应设置乙级防火门或符合《建筑设计防火规范》(GB 50016—2014)第6.5.3条规定的防火卷帘。 1APX+T8jJvjoiJRG7hVh+BYtRf+PuoRS9nR4W+1C3qbNy5ys0kNa8cE0Um5CPdR1

点击中间区域
呼出菜单
上一章
目录
下一章
×