购买
下载掌阅APP,畅读海量书库
立即打开
畅读海量书库
扫码下载掌阅APP

用设计实现梦想的家

Kenji创意空间 设计师 曹暐杰

天花照明:间接盒长型开孔,加装喷砂玻璃,让光线能直接穿透至下方。

地点:台北

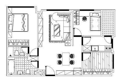
风格:现代简约

面积:83m 2

格局:客厅、餐厅、主卧室、客房兼更衣室、儿童房

建材:大理石、系列家具、茶镜、日本进口壁纸、壁贴

客厅:简洁大方的空间感,天花板以间接照明搭配嵌灯,呈现柔和的灯光氛围。

天花照明:间隔长方形开孔,加装喷砂玻璃,让光线能直接穿透至下方。

1.彩绘门:壁画师现场彩绘的门扉,蓝天白云的海岛风景,为居家生活注入休闲气息。

2.餐厅:搭配精巧水晶灯,增添用餐时光的浪漫气氛。

3.主卧室:衣柜以“智能型收纳”概念,细分收纳机能,创造更好的收纳效果。

4.主卧入口:彩绘主题在开启房门时,亦成为卧室的美好风景。

5.系列柜:不平的墙面与系列柜之间产生缝隙,设计者加装抽拉镜的巧思,正好一举两得。

6.日本进口壁纸:类似文化石质感的壁纸,不但不积灰尘,价格相较之下也更实惠。

生活巧思,彩绘美好氛围

“Hi Kenji梦想的家,通过你的巧思及神奇的双手圆满完成,而且越看越美丽,感谢您!”

一段房主在Kenji创意空间博客内的留言,透露出梦想居家终于获得实现的感动,双方愉快的互动过程与意见交流之间,让家不再是设计者的技巧展演,而是结合居住者的个人特质,让居家空间有了独一无二的故事性。简洁大方的设计却能与众不同,由房主浪漫的性格,延伸出空间的情境主题,纯净的北欧风情中,最引人注意的莫过于壁画师现场彩绘的门扉,蓝天白云的海岛风景,悠闲适意的美好国度,让度假气息悄悄进入都市生活。客厅墙面仿复古砖的进口壁纸,变化纯白视野的层次,近似文化石的质感,砖石的清晰纹路,为家中增添异国情调;同轴线延伸至注重气氛营造的餐厅,则以精致主灯与茶镜相辉映,散落一室的浪漫氛围。而在机能方面,Kenji创意空间强调的是“智能型收纳”的概念,洽谈过程深入居住者的生活细节,谨慎细分收纳机能,系列柜也能灵巧活用,相同的空间之下,创造出更好的收纳效果。 9424uN7UTRsGz/LFFs2TLM3pRhy35Dk/dXYEUtXIjW7CKkZxyqjyKrPLZD8WUcSp

点击中间区域
呼出菜单
上一章
目录
下一章
×

打开