



直线类线段的特点是至少需要指定两个点,这两个点可以是端点也可以是直线线段上的任意点。直线类线段一般用于构建轮廓线或者作为其他线段的辅助线。
直线是将两个点作为起点和端点进行连接,是最常用的绘图命令之一。直线的绘制方法有两种。
1.通过动态输入绘制直线
在状态栏中按下“动态输入”按钮启用动态输入,在菜单栏中执行“绘图>直线”菜单命令,或在“绘图”面板上单击“直线”按钮
,①输入直线起点的坐标值,如图3-13所示。②移动光标输入直线的长度,③在键盘上按下【Tab】键输入直线的角度,在键盘上按下【Enter】键即可创建一条直线,如图3-14所示。
知识补充
如果关闭“动态输入”功能,在绘制带有角度的直线时,在命令窗口中输入"@L<A",然后按下【Enter】键也可以绘制直线,L为直线的长度,A为直线的角度。
2.通过连接两个参考点来绘制直线
该种方式是通过已有线段上的参考点来作为直线的起点和端点。执行“直线”命令指定直线的第一个端点,如图3-15所示,再指定直线的第二个端点,程序自动在两个点之间连接一条直线,如图3-16所示。
射线是从一个端点向另一个端点无限延长的线段,射线一般用于辅助参考线。在绘制射线时先要指定射线的起点,再指定射线上的任意点。
原始文件:dwg\原始文件\Ch3\绘制射线.dwg
最终文件:dwg\最终文件\Ch3\绘制射线.dwg
打开“dwg\原始文件\Ch3\绘制射线.dwg”图形文件,在状态栏中单击“正交模式”按钮启用正交模式。展开“绘图”面板,①单击“射线”按钮
,如图3-17所示,②在图形中指定射线的起点,如图3-18所示。
向右移动鼠标,指定右边第一条线段的垂直点为射线的端点,如图3-19所示。程序根据两个点的位置自动创建出一条射线,用同样的方法创建其余几条射线,如图3-20所示。
构造线是向两端无限延伸的线段,也是用于辅助线段,常用来检验线段是否在同一条直线上以及是否平行等。创建构造线的方法与前面两种线段的创建方法大致相同,在“绘图”面板中单击“构造线”按钮
,①指定构造线的起点,如图3-21所示,②再指定构造线的端点,程序自动创建出一条构造线,如图3-22所示。
多线由1~16条平行线组成,在绘制多线之前需要先进行多线设置。用户可以定义多线的数量、线型和颜色。
在菜单栏中执行“格式>多线样式”菜单命令,程序将弹出“多线样式”对话框,①单击“新建”按钮新建多线样式,②在弹出的“创建新的多线样式”对话框中输入新样式名称,③然后单击“继续”按钮,如图3-23所示,④在弹出的对话框中输入说明内容,如图3-24所示。
①在“图元”选项组单击三次“添加”按钮,如图3-25所示,②在“图元”选项列表中选择一个图元,③输入偏移距离,④单击“颜色”下三角按钮选择一种颜色,如图3-26所示。
用同样的方法对其余图元设置偏移距离并指定颜色,然后单击“确定”按钮。在“多线样式”对话框中单击“置为当前”按钮,然后单击“确定”按钮结束多线样式的设置。
多线样式设置完成后就可以绘制多线,在菜单栏中执行“绘图>多线”菜单命令,①分别指定多线经过的点,②在命令窗口中输入c闭合多线,如图3-27所示。绘制的多线如图3-28所示。
在建筑设计中经常会绘制各类墙线,绘制墙线的步骤是先绘制直线作为辅助线,然后设置多线样式,使用多线来绘制墙线。
操作难度:**
综合应用:**
发散性思维:**
原始文件:dwg\原始文件\Ch3\绘制墙线.dwg
最终文件:dwg\最终文件\Ch3\绘制墙线.dwg
STEP 01 绘制辅助线
打开“dwg\原始文件\Ch3\绘制墙线.dwg”。
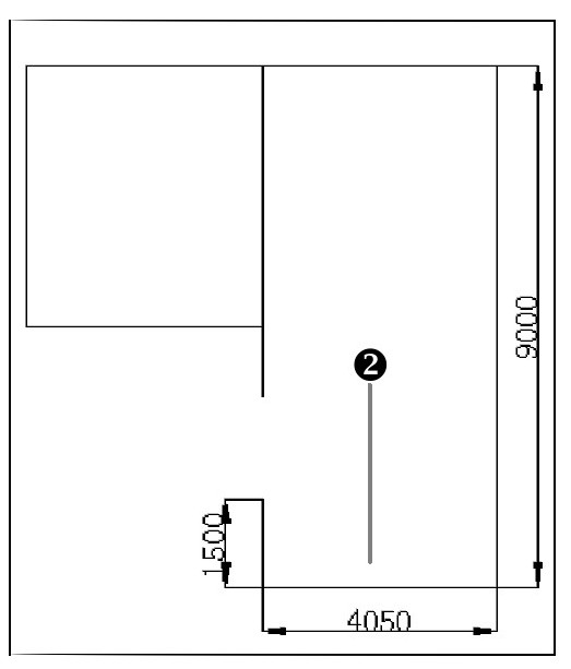
①在菜单栏中执行“绘图>直线”菜单命令,指定直线的起点。
②向右移动鼠标输入直线的长度为4050。
③在键盘上按下【Tab】键输入角度为0。
STEP 02 完成辅助线的绘制
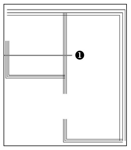
①在状态栏中单击“正交模式”按钮启用正交模式。向下移动光标输入长度为9000。
②继续绘制其余的直线。
STEP 03 设置多线对正方式
①在“多线样式”对话框中选择样式为“宽400”的多线样式。
②单击“置为当前”按钮。
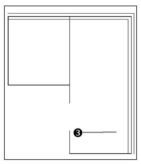
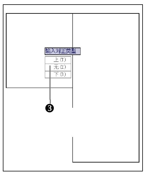
③在菜单栏中执行“绘图多线”菜单命令,在命令窗口中输入J设置多线的对正方式为“无”。
STEP 04 绘制第一组墙体
①在绘图窗口中指定第一组多线的起点。
②依次指定多线经过的第二个点。
③再指定多线的结束点。
STEP 05 更改多线样式
①在绘图窗口中选择一条直线。
②右击鼠标执行“删除”命令。
③在“多线样式”对话框中选择样式为“宽200”的多线样式。
④单击“置为当前”按钮。
STEP 06 绘制第二组墙体
①执行“多线”命令绘制第二组墙体。
②使用“直线”命令连接多线的端点。
STEP 07 编辑多线
①在菜单栏中执行“修改>对象>多线”菜单命令。
②在“多线编辑工具”对话框中单击“十字打开”按钮,然后单击“关闭”按钮。
STEP 08 十字打开多线
①选择第一条多线。
②选择第二条多线。
③将其余相交的多线打开。